958 Sherwood Circle
Lancaster, SC
$279,000
Status: Pending
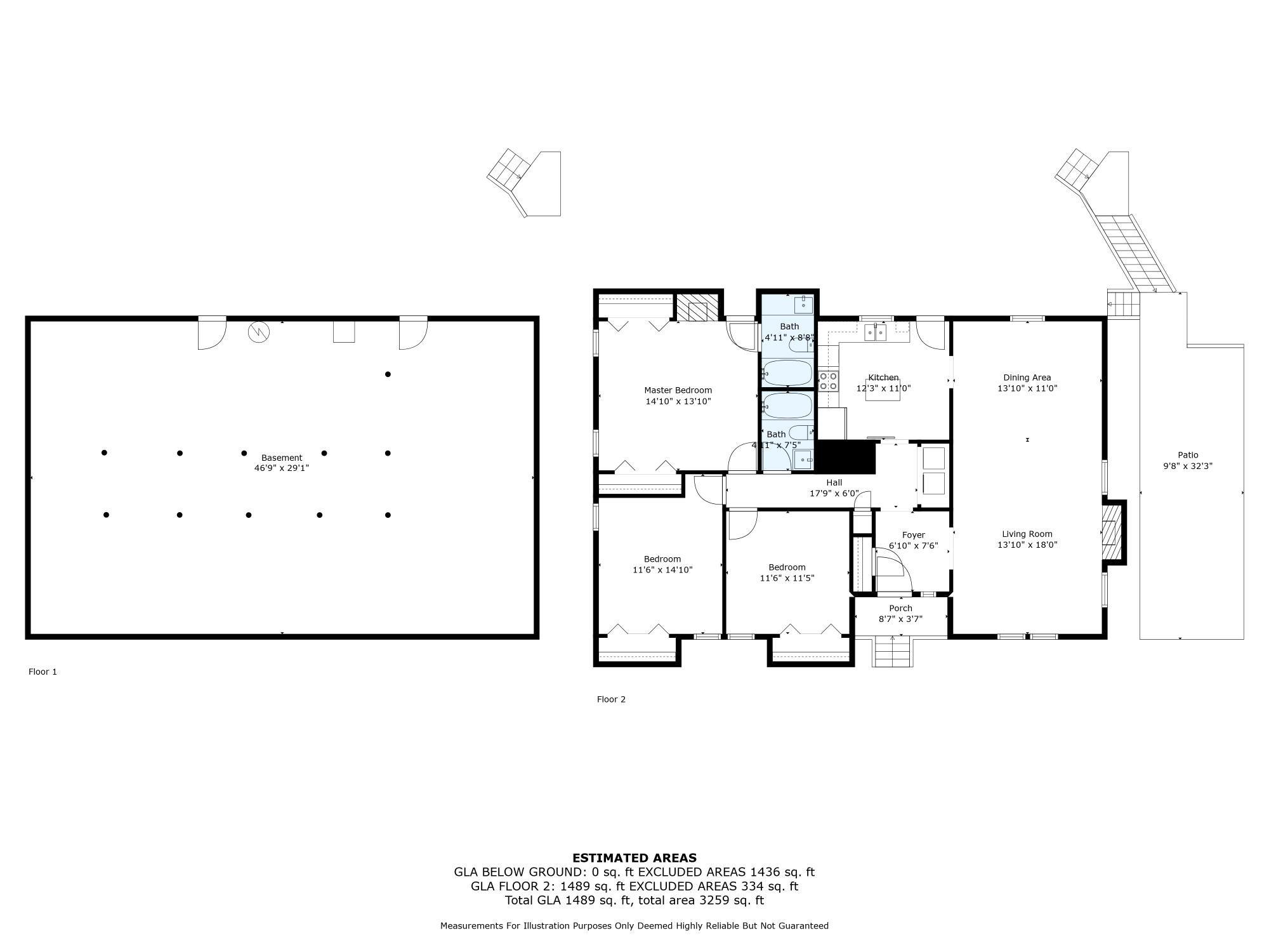
Beds: 3
Full Baths: 2
Sq ft: 1499
Sub Division: Forest Hills
Elementary School: Unspecified
Middle School: Unspecified
High School: Unspecified
Year Built: 1978
Acerage: 0.94 Acres
MLS #: 4202189
Status: Pending
Facebook Twitter Pinterest Instagram eMail To

Details & Amenities

Visit this cozy and quaint 3/2 ranch home in established Forest Hills community in Lancaster SC! Just shy of 1 acre w/ no HOA! Enjoy what feels like a mountain escape with a small stream running through the lush back yard. Large primary bedroom with ensuite bathroom and fireplace. Updates include remodeled guest bath w/tile surround, new vanity, lighting and tub, interior paint, lighting throughout. HVAC and some ductwork 2015, roof 2020, water heater 2019, exterior paint 2020! Kitchen features island, newer stove and vent hood, refrigerator and microwave to remain. Vaulted ceilings in the living room with space that could be used as a small loft. The home offers a basement that is accessible from the outside only, that is great for storage, lawn equipment, etc! Neighborhood has greenspace, pond and optional private community pool membership available. Located next to Lindsay Pettus Greenway and seconds from town.
Property Type:
Residential


Map
This property is a listing of Southern Homes of the Carolinas, Inc.
Listings courtesy of Canopy MLS as distributed by MLS GRID.
© 2025 Canopy MLS. All rights reserved.
Claims of Copyright Infringement & Related Issues (17 USC § 512 et seq.)