4812 Glen Stripe Drive
Indian Trail, NC
$633,084
Details & Amenities
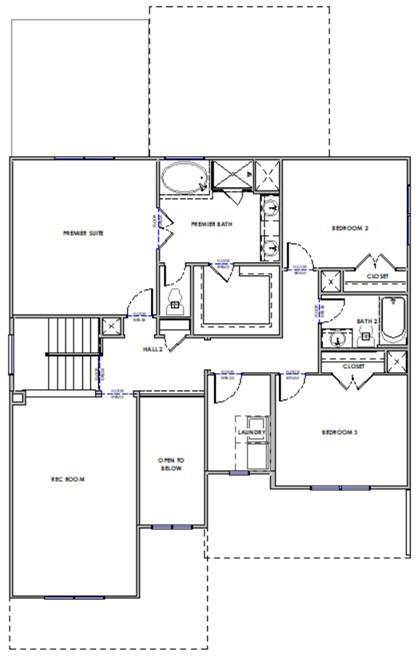
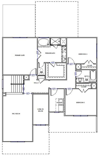
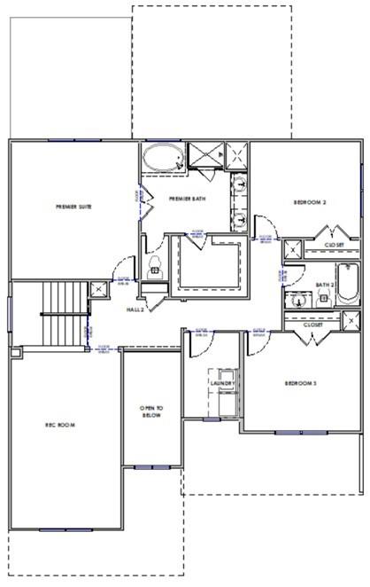
Striking & dramatic Delaney on spacious home site w/ plenty of open grassy space in rear yard. Ideal guest bed down w/ full bath. Primary bed up + rec rm & 2 additional beds. Layout offers an open entertaining feel on main floor. Family room w/ cozy gas log FP, high cathedral ceiling & huge wall of oversized windows. Front porch + rear covered deck. Large kitchen w/ painted shaker style cabinets at perimeter & warm stained island opens to spacious dining room which is wrapped in windows and light. Quartz counters, tile backsplash & gourmet split cooking SS appliances & walk-in pantry. Large center island. Mud room w/ drop zone. Premier suite up w/ decorative tray ceiling & walk-in closet. Premier bath w/ separate garden tub & walk-in tiled shower. Tons of light stained luxury vinyl plank flooring are accented w/ matte black or soft gold hardware, lighting & plumbing. Easy walk across the street to the future amenities including a cabanna, pool, playground & natural walking trails.
Property Type:
Residential
Map
This property is a listing of EHC Brokerage LP.Listings courtesy of Canopy MLS as distributed by MLS GRID.
© 2026 Canopy MLS. All rights reserved.
Claims of Copyright Infringement & Related Issues (17 USC § 512 et seq.)
