1714 Tabby Drive
Indian Trail, NC
$662,951
Status: Pending
Beds: 5
Full Baths: 4
Sq ft: 3398
Sub Division: Calico Ridge
Elementary School: Porter Ridge
Middle School: Porter Ridge
High School: Porter Ridge
Year Built: 2025
Acerage: 0.22 Acres
MLS #: 4243278
Status: Pending
Facebook Twitter Pinterest Instagram eMail To

Details & Amenities

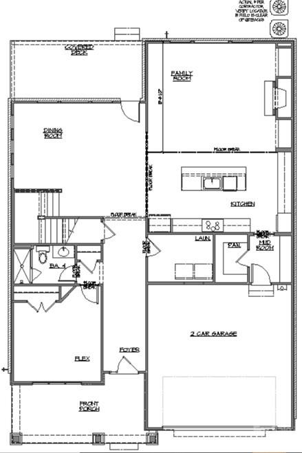
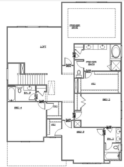
Spacious & Open Kingston plan on a terrific east facing home site w/ large grassy rear yard. Guest bed down w/ full bath & walk-in tiled shower. Primary bed up + open loft & 3 additional beds. Family room w/ cozy gas log fireplace w/ built-in cabinets in the niches on either side of fireplace. Front porch + rear covered deck. Large kitchen w/ dark gray shaker style cabinets. Spacious dining room off kitchen is wrapped in windows & light. Family room also right off kitchen for the perfect entertaining. Quartz counters, tile back-splash & gourmet split cooking SS appliances & walk-in pantry. Plenty of counter top space w/ the large center island. Mud room w/ drop zone. Premier suite up w/ decorative tray ceiling & large walk-in closet. Premier bath features a separate garden tub & walk-in tiled shower. Tons of medium stained luxury vinyl plank flooring are accented w/ matte black hardware, lighting & plumbing. Future amenities include cabana, pool, playground and natural walking trails.
Property Type:
Residential


Map
This property is a listing of EHC Brokerage LP.
Listings courtesy of Canopy MLS as distributed by MLS GRID.
© 2026 Canopy MLS. All rights reserved.
Claims of Copyright Infringement & Related Issues (17 USC § 512 et seq.)