1111 Meander Lane
Waxhaw, NC
$598,900
Details & Amenities
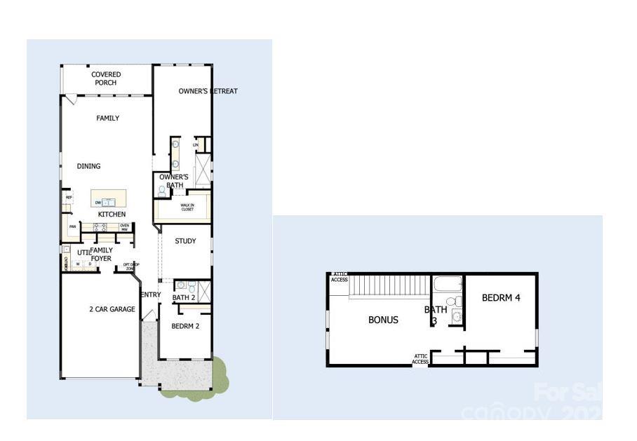
55 + Community! Greet friends and family from the inviting front porch of your beautiful new home in Encore at Streamside! The open gourmet kitchen is adjacent to dining and family areas for easy entertaining. Enjoy privacy and luxury at your Owner’s Retreat and en suite Owner’s Bath. There is a place for everyone from your first-floor study and guest room to a second story guest room, bathroom, and bonus room. Maximize convenience at your family foyer with dual closets, built-in cabinetry, quartz countertop and sink. Unfinished attic storage is accessible from the second floor. Have fun showing off your interior design skills in your new home. Home move in ready with Washer/Dryer, Refrigerator and Blinds.
Property Type:
Residential
Map
This property is a listing of David Weekley Homes.Listings courtesy of Canopy MLS as distributed by MLS GRID.
© 2026 Canopy MLS. All rights reserved.
Claims of Copyright Infringement & Related Issues (17 USC § 512 et seq.)
