1115 West Boulevard
Charlotte, NC
$1,250,000
Details & Amenities
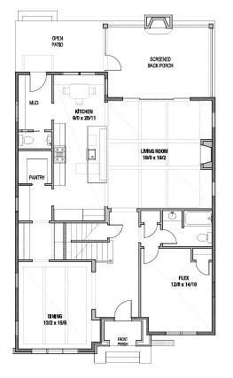
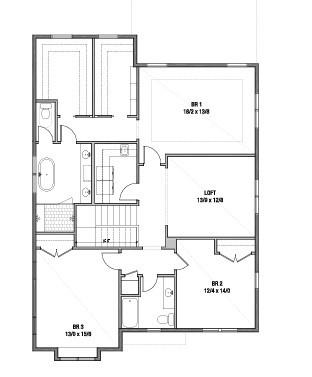
This custom-built 3,000 sq. ft. home features a carefully crafted floor plan, showcasing premium finishes and exceptional functionality. It is designed to be constructed on a prime lot located less than 3 miles from uptown, providing a picturesque view of the Charlotte skyline and is under 5 miles from Charlotte Douglas International Airport. This spacious lot offers unparalleled convenience and potential. Additionally, the detached garage on the second floor can be transformed into a bonus room or apartment, pending the necessary permits and assigned costs.
Property Type:
Residential
Map
This property is a listing of IT Realty, LLC.Listings courtesy of Canopy MLS as distributed by MLS GRID.
© 2025 Canopy MLS. All rights reserved.
Claims of Copyright Infringement & Related Issues (17 USC § 512 et seq.)
