4750 Lakeview Road
Charlotte, NC
$298,000
Details & Amenities
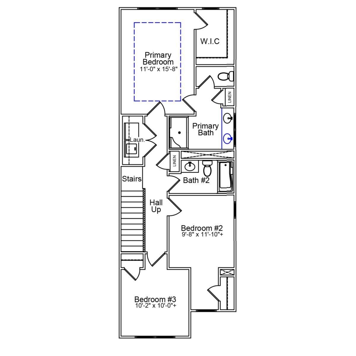
Beautifully designed and thoughtfully crafted, this north-facing Cannalily townhome offers 3 bedrooms, 2.5 baths, and a light-filled open-concept layout perfect for modern living. The kitchen showcases Burlap colored cabinets, white backsplash, Quartz countertops, a spacious sitting island, stainless steel GE electric appliances, and luxury vinyl plank flooring throughout the main level. Upstairs, the spacious primary suite features a boxed ceiling, a walk-in closet, and a private bath with dual vanities and a tiled walk-in shower. A nearby laundry closet adds everyday convenience, while two additional bedrooms and a full bath complete the second floor. Additional features include a rear-entry one-car garage and a built-in bench and cubby system just inside the entry—ideal for storage and organization. With smart design, 9' ceilings on both floors, quality finishes, and low-maintenance living, the Cannalily plan blends style and functionality in every detail! Ask about Move-in package Promotion! 2025 Parade of Homes GOLD Winner!
Property Type:
Residential
Map
This property is a listing of Mungo Homes.Listings courtesy of Canopy MLS as distributed by MLS GRID.
© 2025 Canopy MLS. All rights reserved.
Claims of Copyright Infringement & Related Issues (17 USC § 512 et seq.)
