12107 Sessile Drive
Mint Hill, NC
$926,970
Status: Active
Beds: 4
Full Baths: 3
Half Baths: 1
Sq ft: 3826
Sub Division: Oak Creek
Elementary School: Clear Creek
Middle School: Northeast
High School: Independence
Year Built: 2026
Acerage: 0.49 Acres
MLS #: 4274005
Status: Active
Facebook Twitter Pinterest Instagram eMail To

Details & Amenities

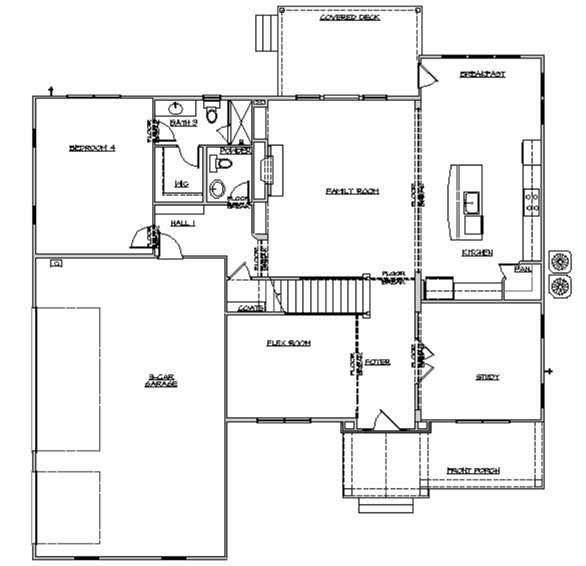
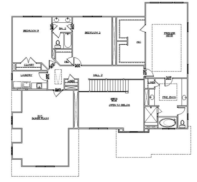
The Silverado's stunning two-story open living and flex area, create a dramatic entrance with open railings on the hardwood stairs.. There are French doors to create an office or private study. The family room has built-in niches on each side of the gas fireplace. And the large island is perfect for prepping meals in the chef's kitchen, featuring a gas range and stainless steel hood. The bright breakfast area leads to the covered porch and patio. The spacious first-floor guest suite offers a walk-in closet and shower. Upstairs, the premier suite includes a sitting area, large walk-in closet and premier bath with separate vanities, shower and a freestanding tub. Two bedrooms share a Jack-and-Jill bath. And the extended bonus room, over the 3-car garage, provides the perfect media room and entertainment space.
Property Type:
Residential


Map
This property is a listing of EHC Brokerage LP.
Listings courtesy of Canopy MLS as distributed by MLS GRID.
© 2025 Canopy MLS. All rights reserved.
Claims of Copyright Infringement & Related Issues (17 USC § 512 et seq.)