5054 Carolina North Drive
Gastonia, NC
$738,900
Details & Amenities
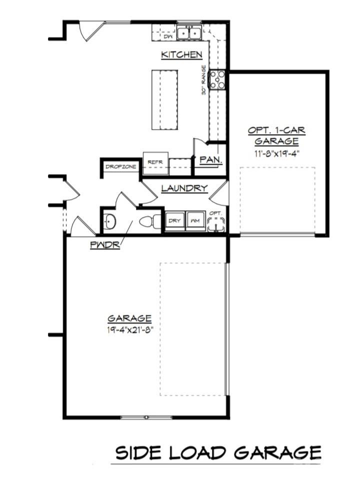
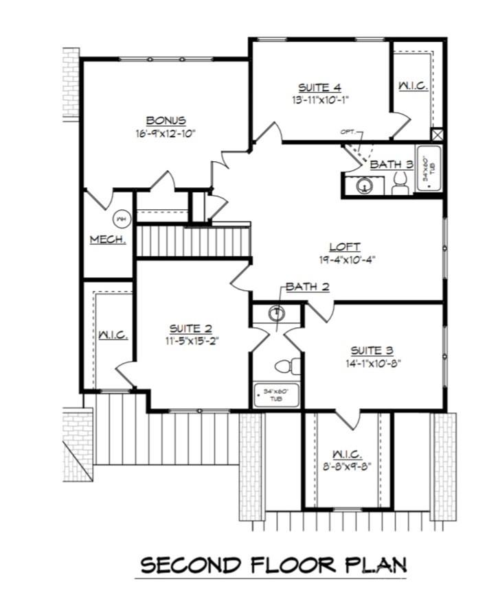
Welcome to Carolina North!!! Huge 1-3 acre homesites!!! Peaceful country setting with all the conveniences just minutes away!! This listing features our Hampshire Plan...primary down...with great included features like crawlspace foundations, side load garages, deluxe gourmet kitchens with large islands, and covered back decks!!! We have 8 lots in the community and multiple floor plans to choose from. Close to Lake Wylie for shopping, restaurants, and incredible recreation!! Contact today for more information and status updates on inventory homes that are under construction.
Property Type:
Residential
Map
This property is a listing of ProStead Realty.Listings courtesy of Canopy MLS as distributed by MLS GRID.
© 2026 Canopy MLS. All rights reserved.
Claims of Copyright Infringement & Related Issues (17 USC § 512 et seq.)
