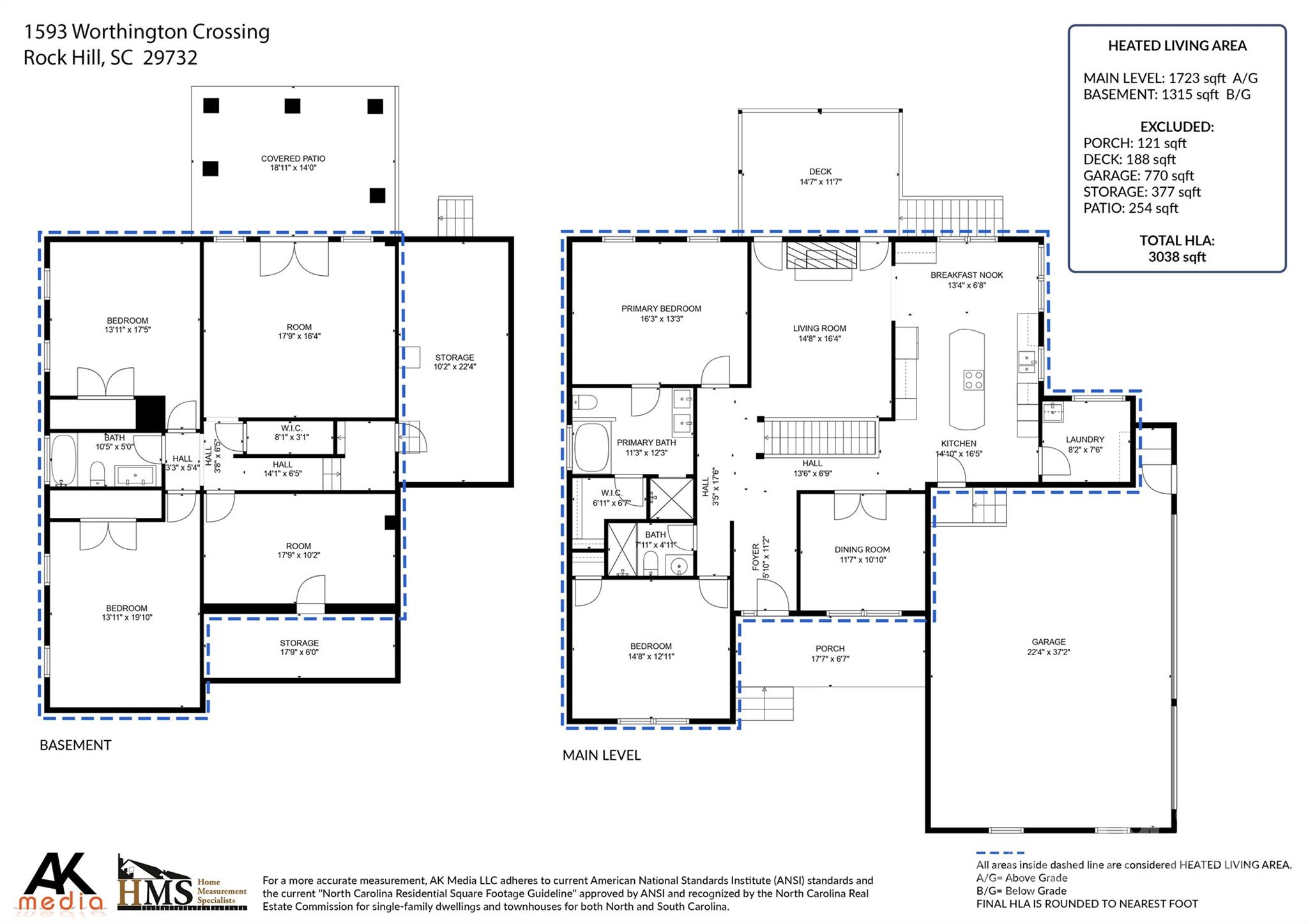
1593 Worthington Crossing
Rock Hill, SC
$575,000
Status: Active Under Contract
Beds: 4
Full Baths: 3
Sq ft: 3038
Sub Division: The Summit
Elementary School: York Road
Middle School: Rawlinson Road
High School: Northwestern
Year Built: 2008
Acerage: 0.39 Acres
MLS #: 4301171
Status: Active Under Contract
Facebook Twitter Pinterest Instagram eMail To

Details & Amenities

Exquisite Brick Ranch on quiet cul de sac w completely finished basement features 4 beds, 3 updated baths, 3 covered porches & 3 car garage. Beautiful hardwoods on main level w NEW carpet in all bedrooms & NEW engineered flooring throughout lower level. Fresh paint, recessed lighting & gorgeous Plantation Shutters throughout this move-in-ready property! Large Kitchen island w smooth cooktop, granite countertops & storage on both sides. Sumptuous Cherry cabinetry w dove tail joints, soft close drawers & under cabinet lighting. NEW Jenn-Air appliances w floating glass front & built in oven. Living Rm w Gas Fireplace leads out to covered deck. Primary Bedroom on main level w trey ceiling & elegantly updated bath w soaking tub. 2nd bed on main with glorious vaulted ceiling. Large laundry rm on main w new sink. Glass French Doors lead to dining room or office. Downstairs offers 2 bedrooms, updated bathroom, family room leading out to a covered patio, flex room for a gym or office AND 2 large storage spaces! Rinnai tankless water heater. Dual zone HVAC for upstairs/downstairs. ALL Bedrooms & Covered Deck wired for TV & internet. Newly re-plumbed throughout w updated PEX. Gas line installed on covered deck for grill/firepit. NEW Well pump. Hot/Cold water spout in garage for easy car washing and extra high ceilings for storage. Irrigation system for front yard. Radiant heat shield in attic. Big backyard w plenty of space for a pool! Walking Distance to high school. Just 10 minutes to all the shops and dining in Downtown Historic Rock Hill! Home Warranty provided by seller.
Property Type:
Residential


Map
This property is a listing of Howard Hanna Allen Tate Southpark.
Listings courtesy of Canopy MLS as distributed by MLS GRID.
© 2026 Canopy MLS. All rights reserved.
Claims of Copyright Infringement & Related Issues (17 USC § 512 et seq.)