3838 Avalon Avenue
Charlotte, NC
$799,999
Details & Amenities
**Home eligible for 4.9% interest rate on a 7 year ARM or 5.99% on 30 year fixed mortgage with 3% down and NO PMI!** Reach out to agent for this lender info or other great lender programs for this home such as another offering up to $20k in down payment and closing cost credits**
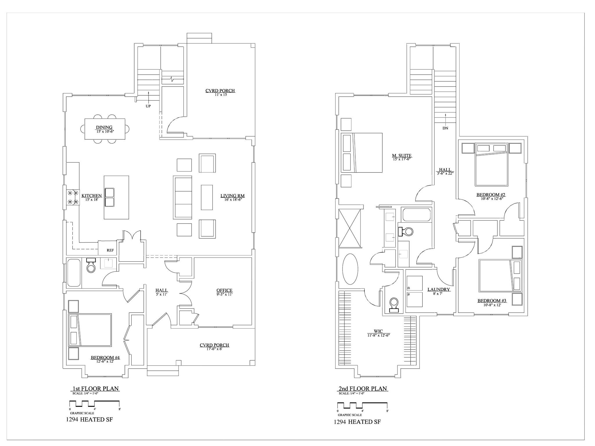
Welcome to 3838 Avalon! The latest new construction build by Forte Builders (formerly JCCH) in a series of 5 custom homes being built along Avalon Ave. This thoughtfully designed transitional craftsman home is located in a pocket of Enderly Park that is seeing heavy revitalization and is only a moment away from all the development action; coffee shops, restaurants & bars, Coterie Yoga, Xgolf, Lucky Dog Bark & Brew, local shops, Savona Mill and more! Home features an open floor plan, 10' ceilings, spacious rooms and ample storage. Upon arrival, pull behind your electric driveway gate for a private rear entrance into a stylish drop zone, leading into your open main space. Or at the front be greeted off the foyer by bold office space behind glass french doors. Forte’s build quality and finishes go above and beyond - Enjoy high end design detail throughout; heavy trim and moldings, white oak engineered wood floors, custom cabinetry, handmade designer tile, elegant lighting, and earthy tones. Spread out in your generous primary suite and enjoy large bath with fluted soaking tub and ample walk-in closet. 3 additional bedrooms, 2 more full bathrooms and dedicated laundry room. Covered front and back porches add large outdoor living spaces in addition to the large fenced rear yard. Get the best of city adjacent urban living! Agent has interest.
Property Type:
Residential
Map
This property is a listing of 5 Points Realty.Listings courtesy of Canopy MLS as distributed by MLS GRID.
© 2026 Canopy MLS. All rights reserved.
Claims of Copyright Infringement & Related Issues (17 USC § 512 et seq.)
