2614 Chesterfield Avenue
Charlotte, NC
$1,490,000
Details & Amenities
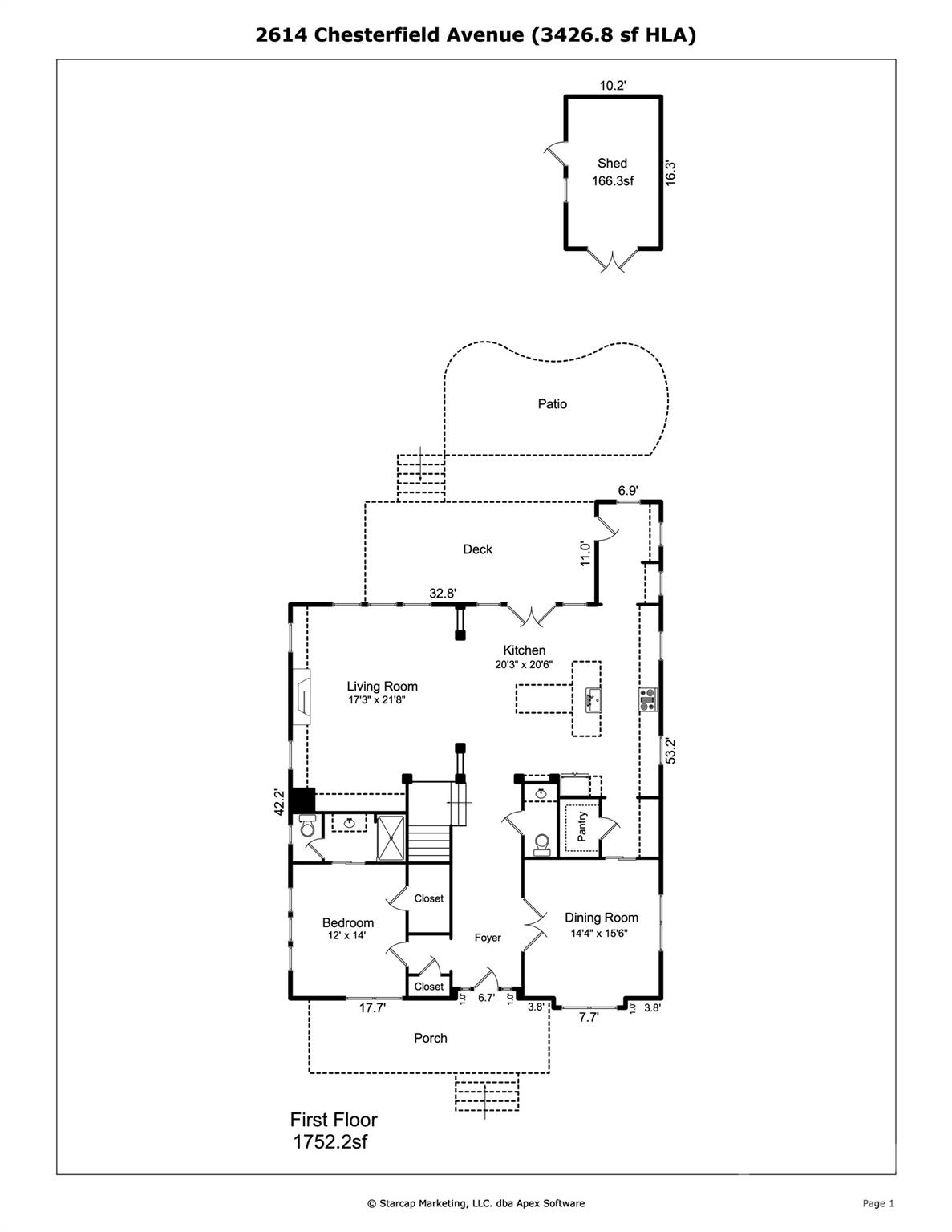
Nestled on a no-outlet street in desirable Chantilly, this modern and stylish craftsman-style home awaits. Built in 2018 by Carolina Craftsman Builders, this 5-bedroom, 3.5-bathroom home is designed with hosting in mind. The chic formal dining room features french doors, wainscoting, and connects to the kitchen via a butler’s pantry/bar. The timeless kitchen has classic white cabinetry, counter-to-ceiling backsplash tile, a natural wood island with seating, and a walk-in pantry. The open-concept living room boasts decorative ceiling moldings, built-in bookcases, and a cozy gas fireplace with a beautiful mosaic. The convenient, main-level bedroom and full bathroom are perfect for guests. A spacious loft at the top of the stairs creates endless flexibility. The inviting primary suite on the second level is a true retreat, thanks to a walk-in closet and a tranquil en-suite bathroom with a double vanity, clawfoot tub, and a separate shower. Secondary bedrooms are well-appointed and share a full bathroom with a double vanity and shower/tub combination. The fifth bedroom also makes for a wonderful dedicated office on the second level. Thoughtful architectural details, elegant finishes, and hardwood floors add to the home’s appeal. Great storage for easy organization throughout, including a main-level mudroom with a built-in workspace/cubbies and an upstairs laundry room. A fenced backyard is a private paradise with a covered deck, large patio, and mature landscaping.
Walking distance to the best of Plaza Midwood, Elizabeth, and the Chantilly Ecological Sanctuary and Park!
Property Type:
Residential
Map
This property is a listing of Genevieve Williams Real Estate LLC.Listings courtesy of Canopy MLS as distributed by MLS GRID.
© 2025 Canopy MLS. All rights reserved.
Claims of Copyright Infringement & Related Issues (17 USC § 512 et seq.)
