110 Hunter Lane
Charlotte, NC
$2,750,000
Details & Amenities
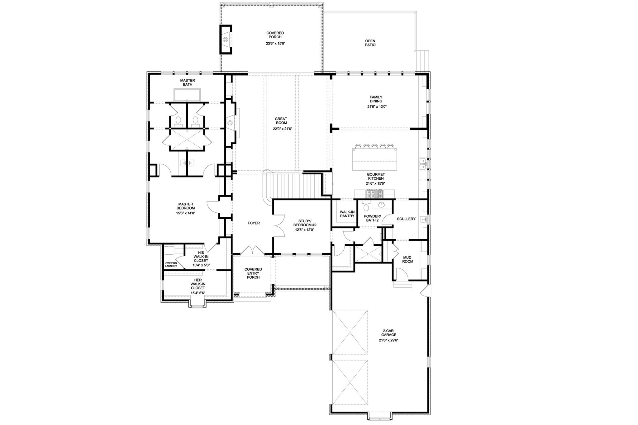
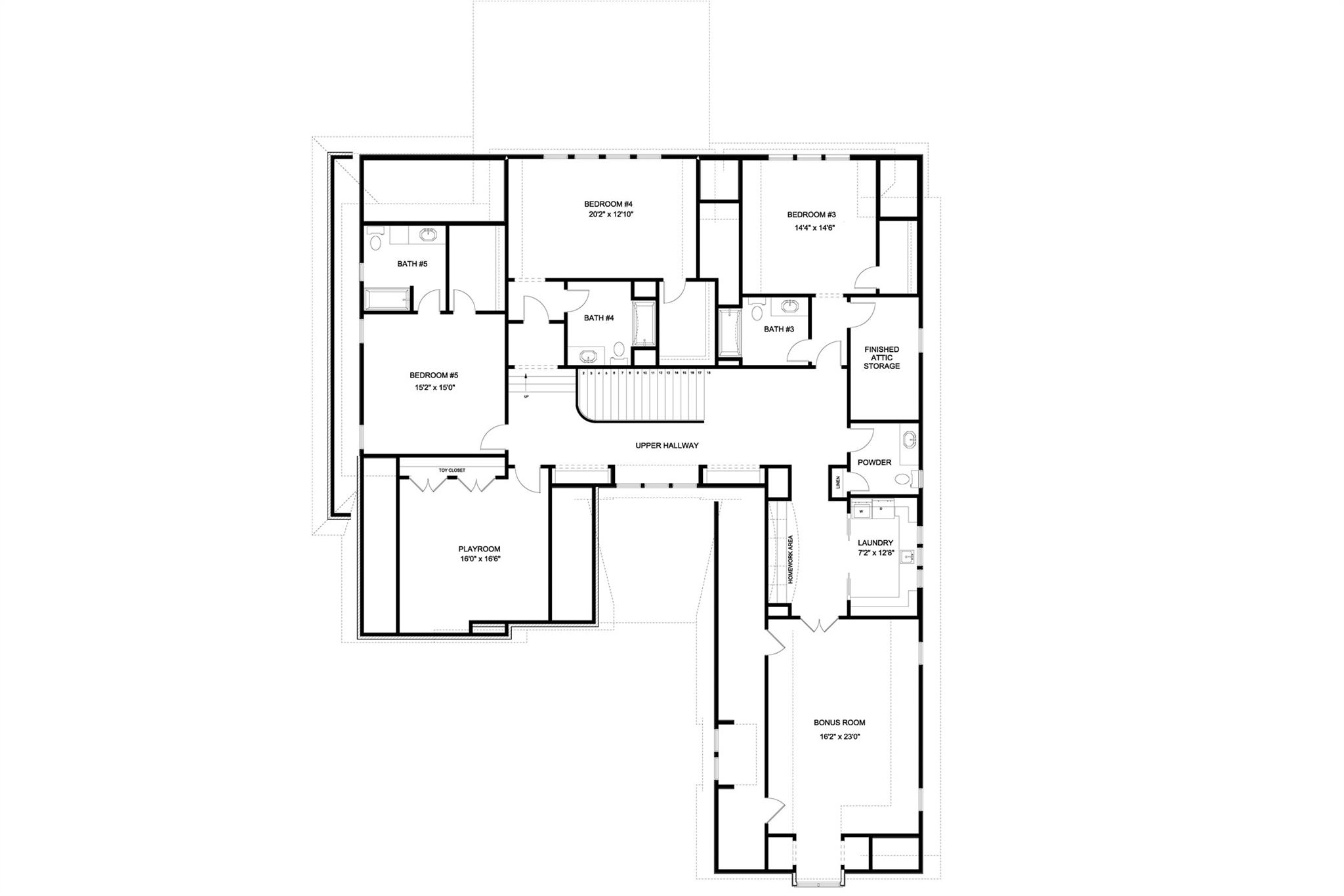
Construction is underway on this 5,600+ sq. ft custom home, and you still have the rare opportunity to make it your own. Unlike most new builds that are completed before you walk through the door, this one gives you the chance to personalize some of the details that matter most. From flooring, fixtures and colors, your selections can bring your vision to life.
Foundation is in & incapsilated, the rough carpentry, dimensional roof shingles. rough electrical, rough plumbing, rough HVAC, spray foam insulation, sheetrock is up and taped throughout. Getting ready for tile and trim carpentry.
Now comes the fun: there still is a little time for you to choose some finishes and features that will turn this house into your dream home. If making every decision feels overwhelming, we can share our vision with you and you can decide how much or how little you’d like to customize.
The sooner you get involved, the more opportunities you’ll have to make those key selections and leave your mark on the home. Start gathering your inspiration—this is your chance to create something truly remarkable.
Projected construction completion date of May/June 2026.
Property Type:
Residential
Map
This property is a listing of Roma Real Estate Inc..Listings courtesy of Canopy MLS as distributed by MLS GRID.
© 2026 Canopy MLS. All rights reserved.
Claims of Copyright Infringement & Related Issues (17 USC § 512 et seq.)
