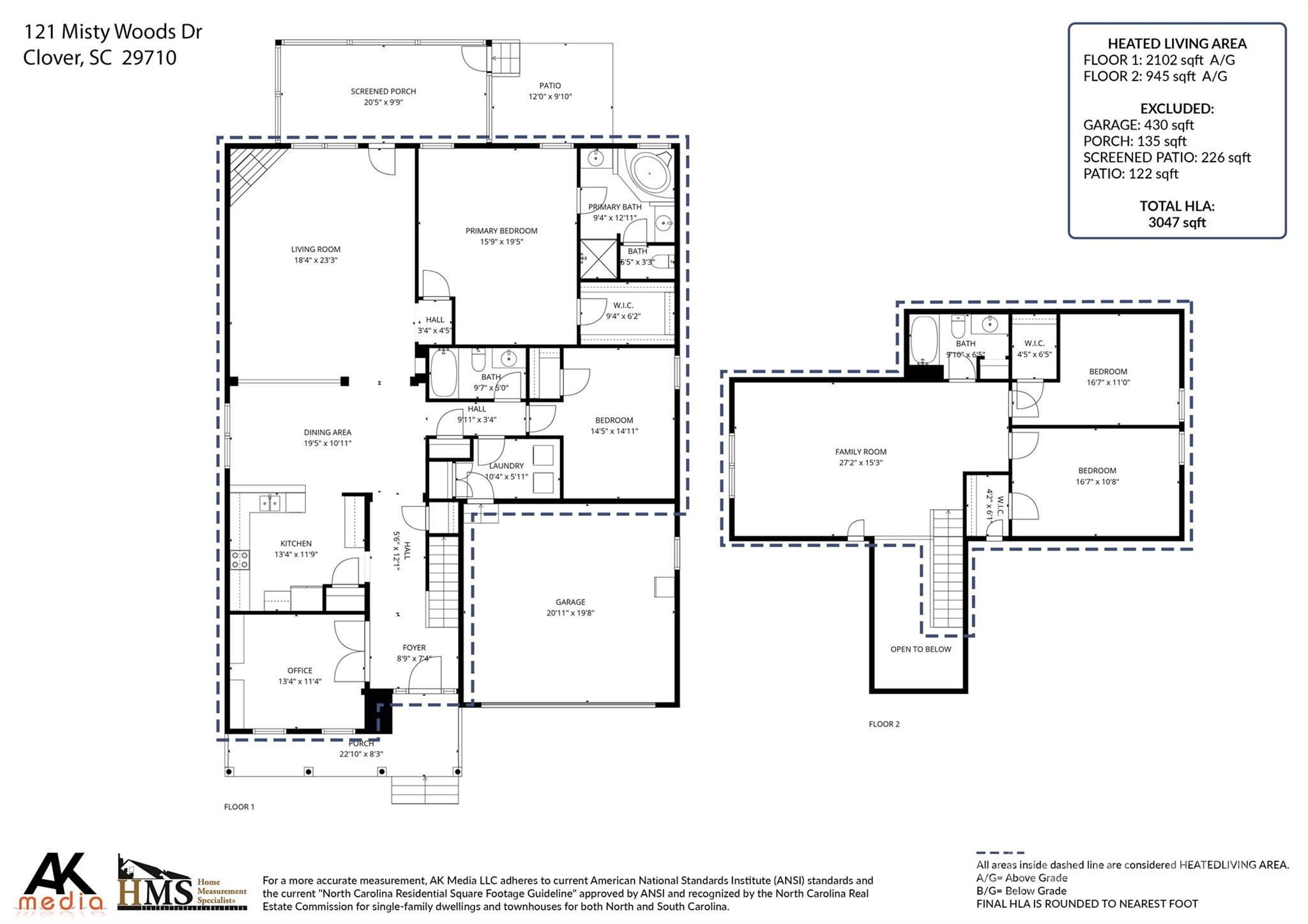
121 Misty Woods Drive
Clover, SC
$516,500
Status: Active
Beds: 4
Full Baths: 3
Sq ft: 3047
Sub Division: Lake Forest
Elementary School: Crowders Creek
Middle School: Oakridge
High School: Clover
Year Built: 2012
Acerage: 0.22 Acres
MLS #: 4306706
Status: Active
Facebook Twitter Pinterest Instagram eMail To

Details & Amenities

You will fall in love with this absolutely beautiful ALL-BRICK home in Lake Wylie!! The spacious screen porch with a vaulted ceiling was added in 2023 and overlooks the private yard that backs to an HOA-owned tree buffer. The unique floorplan features the primary suite and a guest bedroom with an adjacent full bath on the main level, plus two more bedrooms with walk-in closets, a third full bath and a large loft/bonus room upstairs. The main level also has an office with French doors, a spacious kitchen & dining area, and a large great room with a gas fireplace, large windows and a doorway to the screen porch. The primary suite has a tile shower, separate vanities, a garden tub and a spacious walk-in closet. Other notable features include a wooden staircase, wood floors throughout the main living area, built-in shelving in the office, and storage under the screen porch. The crawlspace is encapsulated with a dehumidifier, the roof was replaced in 2019, the main floor furnace and HVAC were replaced in 2021, the upstairs A/C was replaced in 2023, and the tankless water heater was added in 2023. The community features a playground and lake access for launching personal watercraft onto Lake Wylie and is less than a mile from Starbucks, Publix, Walmart, Lowes and all of the shopping and restaurants in Lake Wylie.
Water Body:
Lake Wylie
Property Type:
Residential


Map
This property is a listing of Better Homes and Garden Real Estate Paracle.
Listings courtesy of Canopy MLS as distributed by MLS GRID.
© 2026 Canopy MLS. All rights reserved.
Claims of Copyright Infringement & Related Issues (17 USC § 512 et seq.)