1019 Perla Road
York, SC
$200,000
Details & Amenities
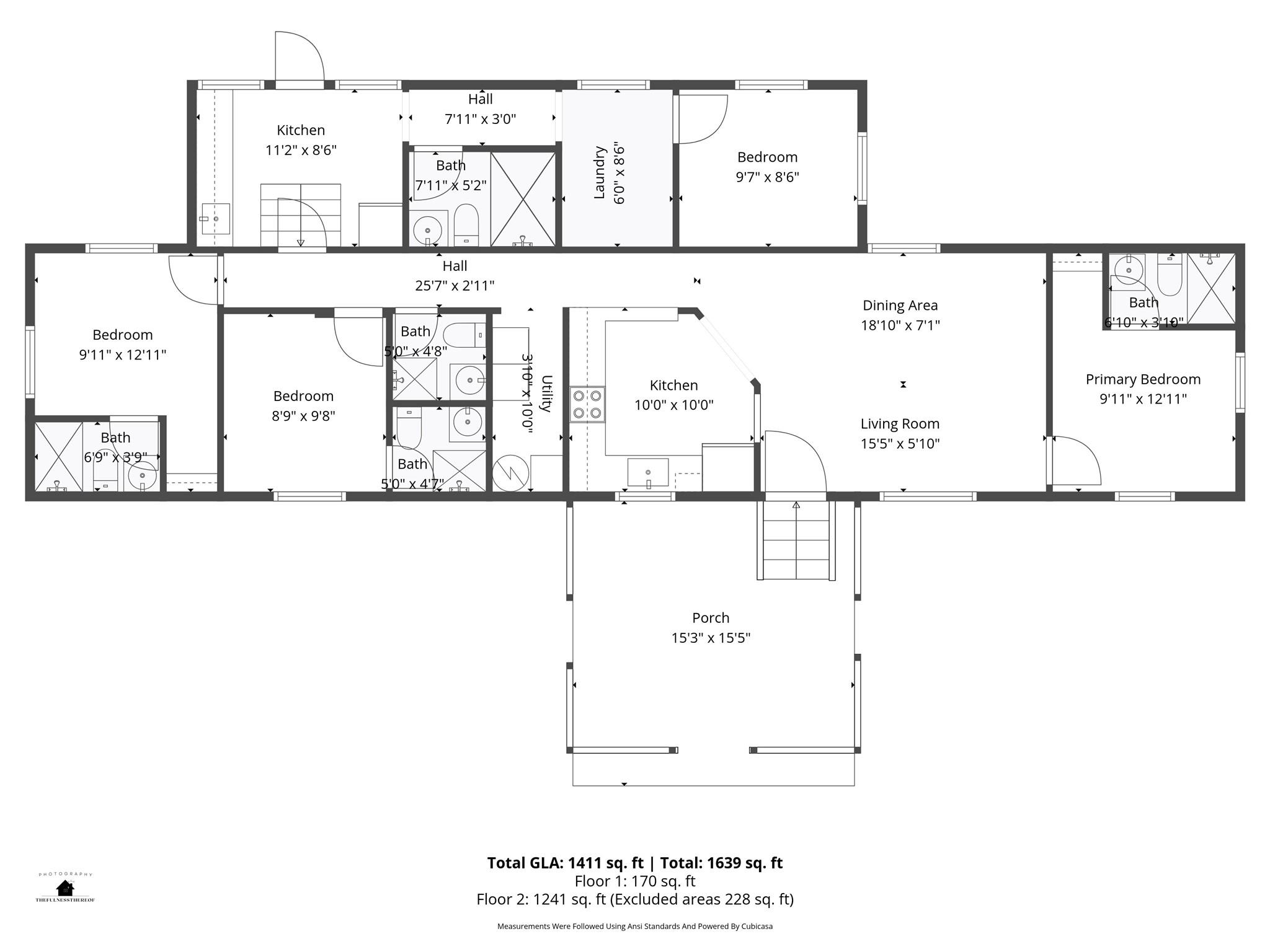
This charming ranch-style manufactured home sits on nearly 1.5 acres of peaceful countryside. Recently remodeled in 2023, it offers modern updates with a cozy country feel. Enjoy the privacy, open space, and endless possibilities this property provides.
Perfect for investors looking to generate rental income or for anyone wanting a quiet retreat with plenty of room to grow. Conveniently located just minutes from town, this home combines comfort, value, and opportunity.
Property Type:
Residential
Map
This property is a listing of Epique Inc..Listings courtesy of Canopy MLS as distributed by MLS GRID.
© 2025 Canopy MLS. All rights reserved.
Claims of Copyright Infringement & Related Issues (17 USC § 512 et seq.)
