3034 Crosswind Drive
Indian Land, SC
$535,000
Details & Amenities
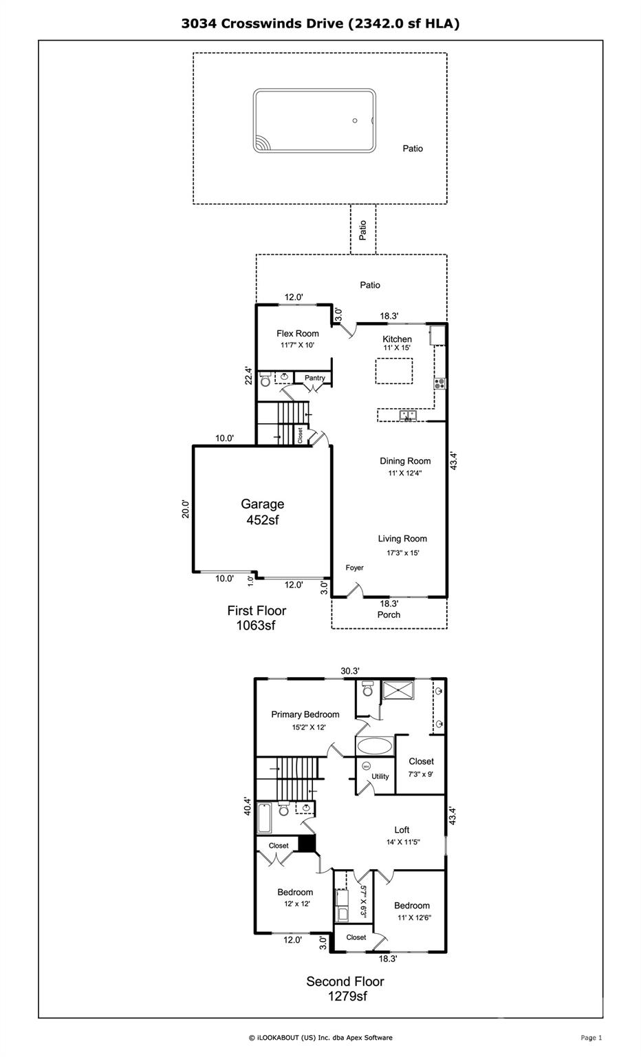
Located on a serene street in Silver Run, this move-in-ready 3-bedroom / 2.5-bathroom home features a flexible floor plan and an in-ground saltwater pool! This two-story residence features exterior stone accents and a covered front porch, creating a lovely first impression. The gracious, open floor plan has an easy flow and beautiful natural light. The living room is a great gathering space designed with entertaining in mind and has elegant wainscoting to define the space. The dining area is well-suited for intimate dinner parties and hosting larger groups. Eat-in kitchen features warm, wood-tone cabinetry, ample storage, granite countertops, a dedicated pantry, and an island with bar seating. A main-level bonus room overlooking the backyard offers lots of flexibility and would be a wonderful home office or den. Spacious primary suite located on the second level boasts a walk-in closet and an en-suite bathroom with a double vanity, soaking tub, and separate shower. Secondary bedrooms are well-appointed and share access to a full bathroom with a shower/tub combination. The upstairs loft makes for an incredible multi-use space! Thoughtful details and conveniences throughout, including a laundry room on the same level as all of the bedrooms and an attached two-car garage. Amazing, highly usable 0.23-acre lot ideal for indoor-outdoor living. Fully-fenced backyard is an outdoor oasis thanks to an in-ground saltwater pool and patio perfect for grilling, lounging, or entertaining. Located only minutes from the attractions and restaurants in Fort Mill, Ballantyne, and Blakeney!
Property Type:
Residential
Map
This property is a listing of Genevieve Williams Real Estate LLC.Listings courtesy of Canopy MLS as distributed by MLS GRID.
© 2026 Canopy MLS. All rights reserved.
Claims of Copyright Infringement & Related Issues (17 USC § 512 et seq.)
