1049 Pinecone Avenue
Indian Land, SC
$699,000
Details & Amenities
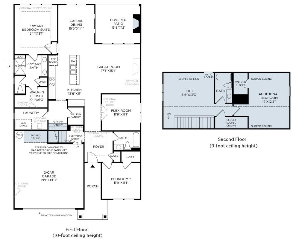
The casual dining area is adjacent to the spacious kitchen with butler's pantry and provides a convenient & intimate setting for entertaining. It overlooks the covered porch with stone, gas log fireplace, ideal for enjoying those outdoor times. The spacious great room is perfectly situated to host large gatherings. Create your ideal living space with the generous flex room located on the first floor. The lovely primary bedroom offers a comfortable retreat and a lavish bath. A 2nd floor flex room with adjacent guest bedroom with walk in closet and full bath offer private accommodations for your guest. Located in The Pines at Sugar Creek, a vibrant 55+ community designed for low-maintenance living and an active lifestyle. Community amenities are underway & include a pool, spa, pickleball, tennis & bocce courts, fitness center, clubhouse & more. Pricing reflects the base home price, structural options and homesite premium only. Design upgrades are not included, for a limited time, buyer can select their own interior features. Prices subject to change.
Property Type:
Residential
Map
This property is a listing of Toll Brothers Real Estate Inc.Listings courtesy of Canopy MLS as distributed by MLS GRID.
© 2026 Canopy MLS. All rights reserved.
Claims of Copyright Infringement & Related Issues (17 USC § 512 et seq.)
