12109 Avienmore Drive
Charlotte, NC
$576,990
Details & Amenities
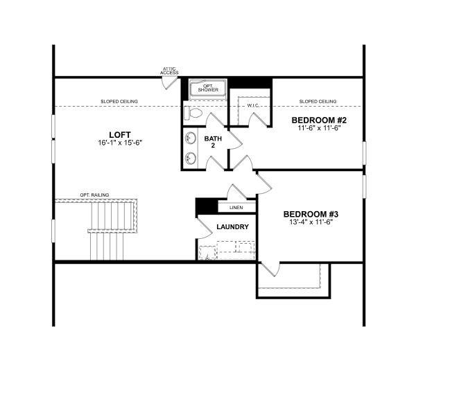
Welcome to the Juniper! Walking in from your front covered porch you are greeted with an inviting and homey foyer. Just over the foyer is a main level guest suite including its own private bathroom and walk-in closet. The home opens up to the kitchen, breakfast area and family room. The kitchen houses stainless steel appliances, gas cooktop, overhead exhaust hood and a kitchen island. The family room is spacious and includes a gas fireplace, perfect for those colder nights. Walk through the atrium door and you'll find your patio, perfect for entertaining or enjoying a morning coffee. The main level owner's bedroom is fit for royalty. With a tray ceiling, LED lighting and 5" crown molding, you may find it difficult to get out of bed in the mornings! The ensuite features a tiled decked garden tub, separate tiled shower, dual vanity and private toilet area. The expansive walk-in closet is perfect for any size wardrobe. You'll notice throughout the main living areas on this level is easily maintainable EVP flooring as well as 5" crown molding. Upstairs you will find a spacious loft, 2 additional bedrooms, both with walk-in closets, a shared bathroom and your laundry room, complete with laundry cabinets. Welcome to your new home!
Property Type:
Residential
Map
This property is a listing of M/I Homes.Listings courtesy of Canopy MLS as distributed by MLS GRID.
© 2025 Canopy MLS. All rights reserved.
Claims of Copyright Infringement & Related Issues (17 USC § 512 et seq.)
