10200 Atchinson Drive
Mint Hill, NC
$399,500
Details & Amenities
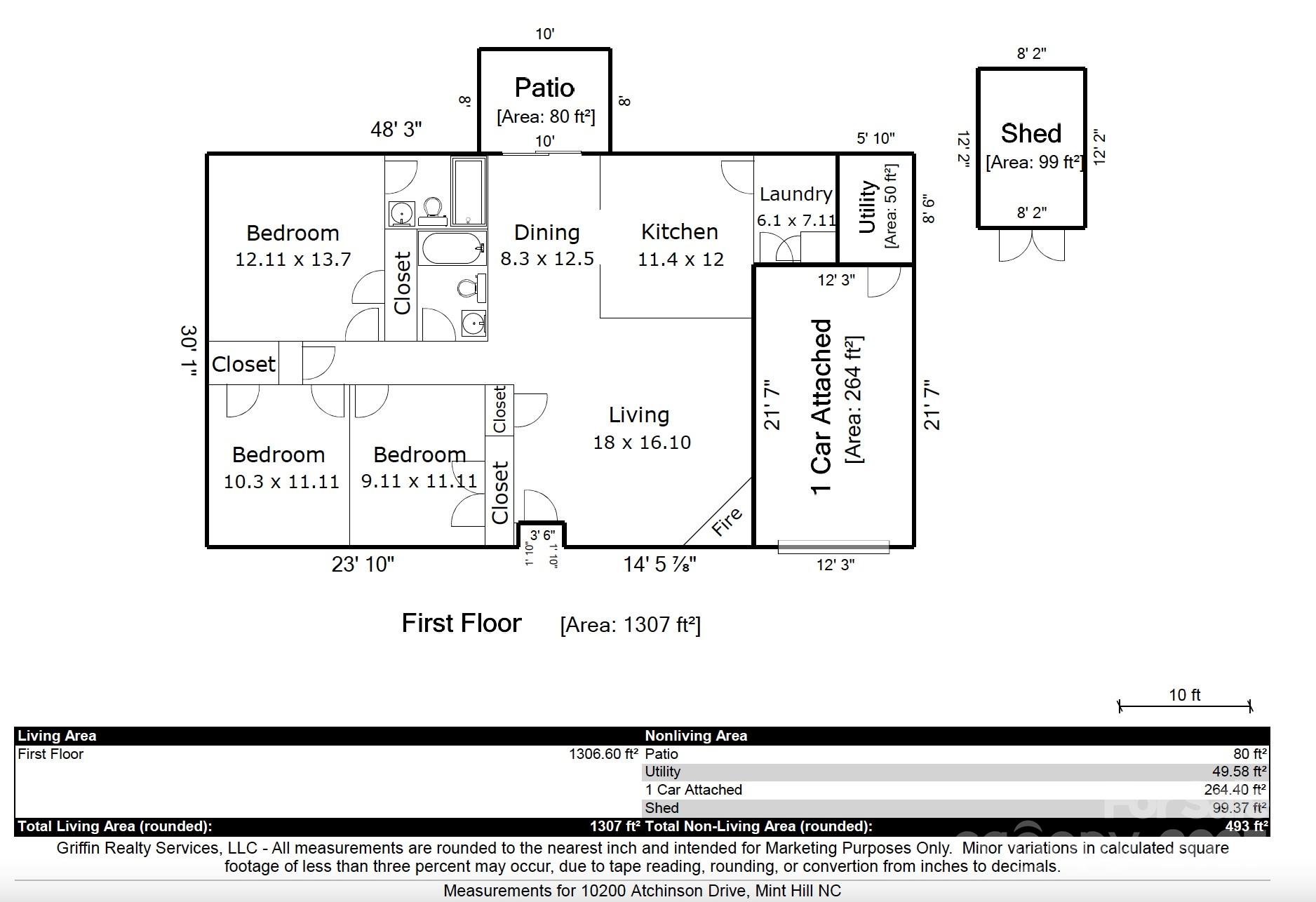
Welcome to 10200 Atchinson Drive- a charming ranch-style home in the heart of Mint Hill that perfectly blends comfort, style, and modern updates. Step inside to discover a beautifully refreshed interior featuring new flooring, a remodeled kitchen and bathrooms, and a cozy fireplace that anchors the living space with warmth and charm.
The updated kitchen shines with stainless steel appliances, tile backsplash, and sleek finishes, while the remodeled bathrooms include stylish touches like a fully tiled primary shower with a glass enclosure. This thoughtfully updated home is truly move-in ready, offering peace of mind with a new roof in 2025, furnace in 2020, AC in 2024.
Enjoy your morning coffee or evening gatherings in the large, flat backyard, complete with a storage shed for extra space-or unwind on the private back patio. The attached one-car garage and dedicated laundry area add everyday convenience.
Located just minutes from Mint Hill’s shops, dining, and parks, this home offers the perfect combination of small-town charm and easy access to Charlotte.
Property Type:
Residential
Map
This property is a listing of Real Broker, LLC.Listings courtesy of Canopy MLS as distributed by MLS GRID.
© 2026 Canopy MLS. All rights reserved.
Claims of Copyright Infringement & Related Issues (17 USC § 512 et seq.)
