5131 Colchester Court
Catawba, NC
$469,700
Details & Amenities
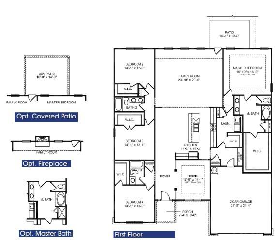
The 2906 floor plan is situated on a one acre corner lot with a 3rd car garage. It has a well appointed layout with beautiful architectural features. The kitchen features a center island with breakfast bar and stainless appliances. The primary is nestled away from the main living area that boasts a private ensuite bathroom. The primary bathroom features dual vanities, separate water closet, tiled shower with bench and a large walk-in closet. The additional three bedrooms are placed on the other side of the home. Step outside to the patio, where you can enjoy outdoor living on a 16 x 14 covered porch. The professionally landscaped yard adds beauty and enhances the overall curb appeal of the home. Coffered ceilings, gridded window panes, electric fireplace and a drop zone along with all the other luxuries says it all. Standard closing costs are paid by the seller when using one of the builders 4 lenders.
Photos are representative and may reflect a staged home.
Property Type:
Residential
Map
This property is a listing of Adams Homes Realty-NC, Inc..Listings courtesy of Canopy MLS as distributed by MLS GRID.
© 2026 Canopy MLS. All rights reserved.
Claims of Copyright Infringement & Related Issues (17 USC § 512 et seq.)
