5232 McCallum Meadows Drive
Charlotte, NC
$363,990
Details & Amenities
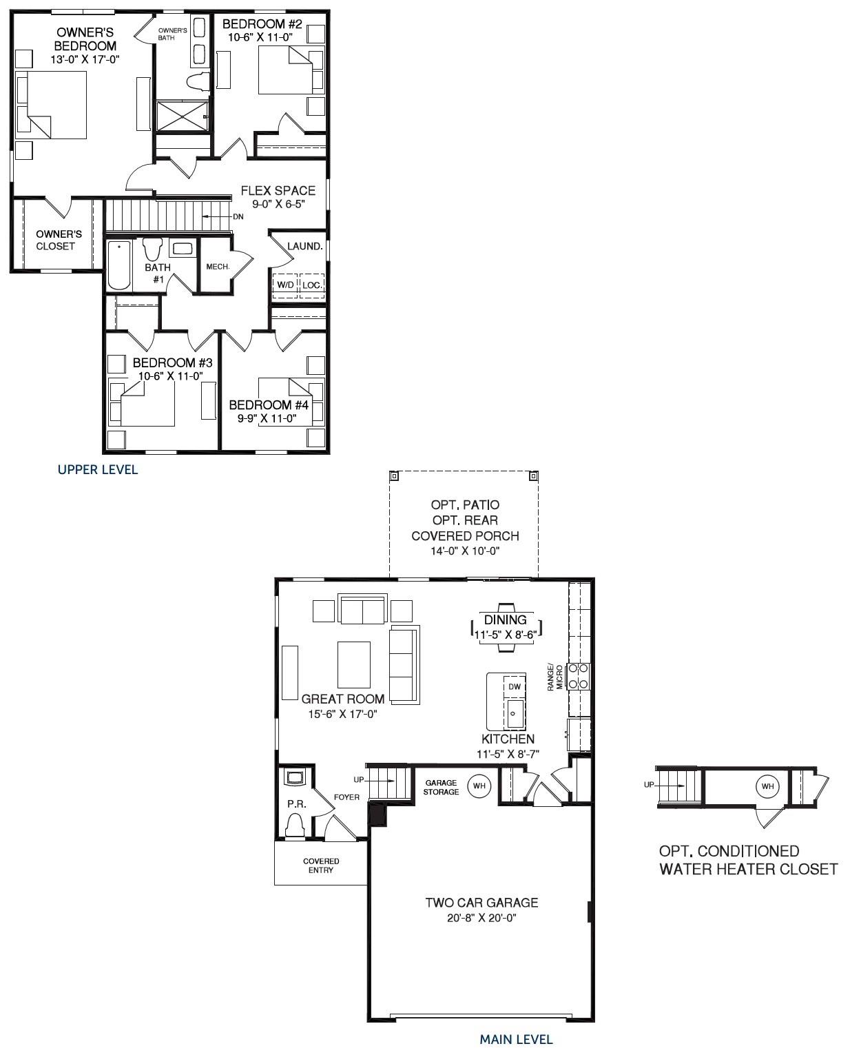
The Sequoia offers efficient two-story living with smartly designed spaces on a slab foundation. The main level features an open-concept layout with large windows that fill the great room, dining area, and kitchen with natural light. The kitchen includes a functional island, stainless steel appliances, granite countertops, ample cabinetry, and a pantry—perfect for busy mornings and entertaining. Upstairs, a bright flex space at the top of the stairs serves as a reading nook, homework zone, or play area. The owner’s suite is privately located at the rear, featuring a spacious layout, large windows, a walk-in closet, and a double-vanity bath with a large shower. Three additional bedrooms—one with a walk-in closet—offer flexibility for family or guests. Additional highlights include a welcoming covered entry, seamless indoor-outdoor flow to the patio or optional rear porch, a garage entry with storage and pantry access, and extra storage under the stairs in the two-car garage. Photos are for illustrative purposes. - To be Built. Primary Residence or smart investment.
Property Type:
Residential
Map
This property is a listing of Smith Capital Partners LLC.Listings courtesy of Canopy MLS as distributed by MLS GRID.
© 2026 Canopy MLS. All rights reserved.
Claims of Copyright Infringement & Related Issues (17 USC § 512 et seq.)
