733 Charles Avenue
Charlotte, NC
$1,650,000
Details & Amenities
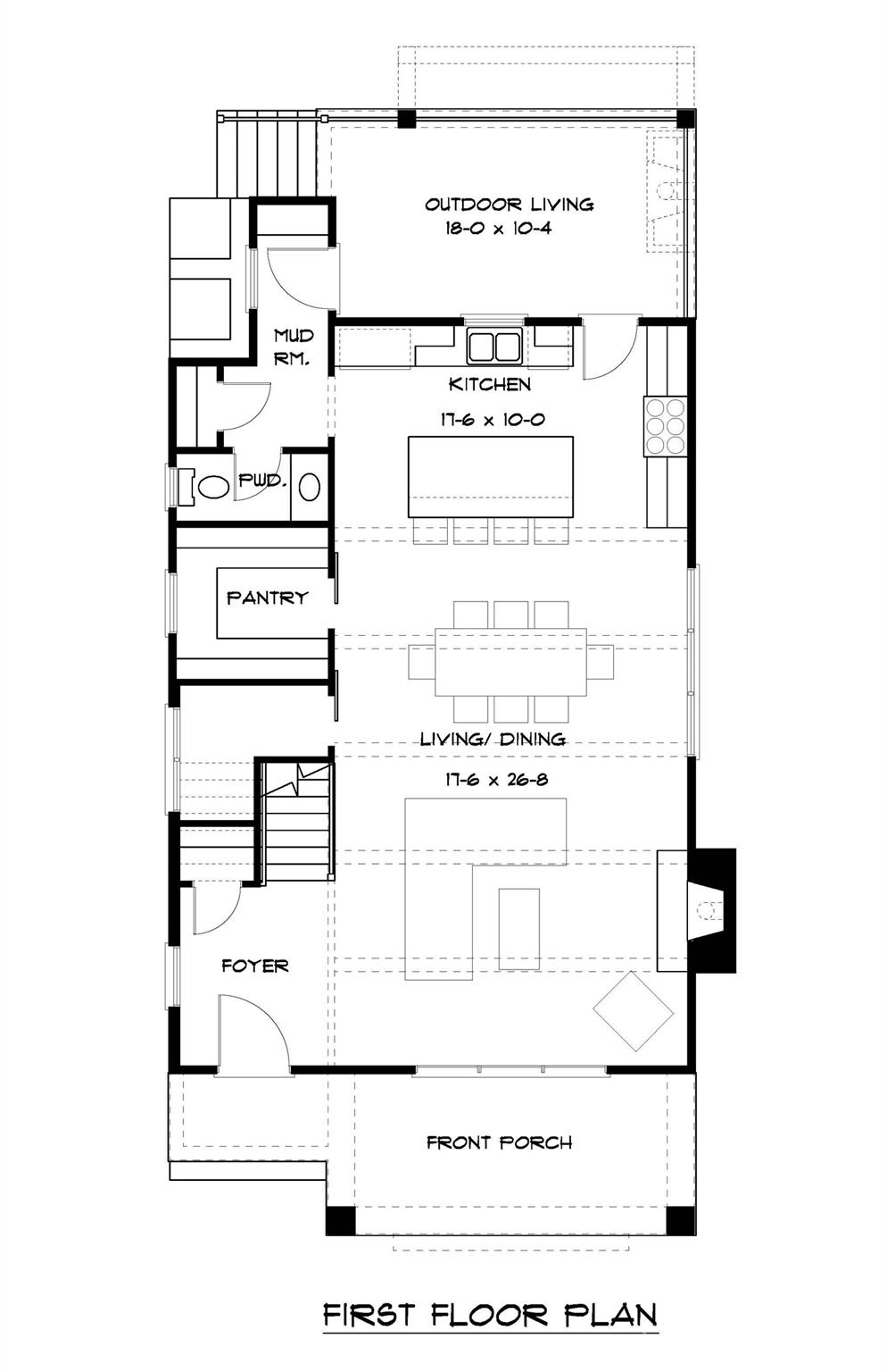
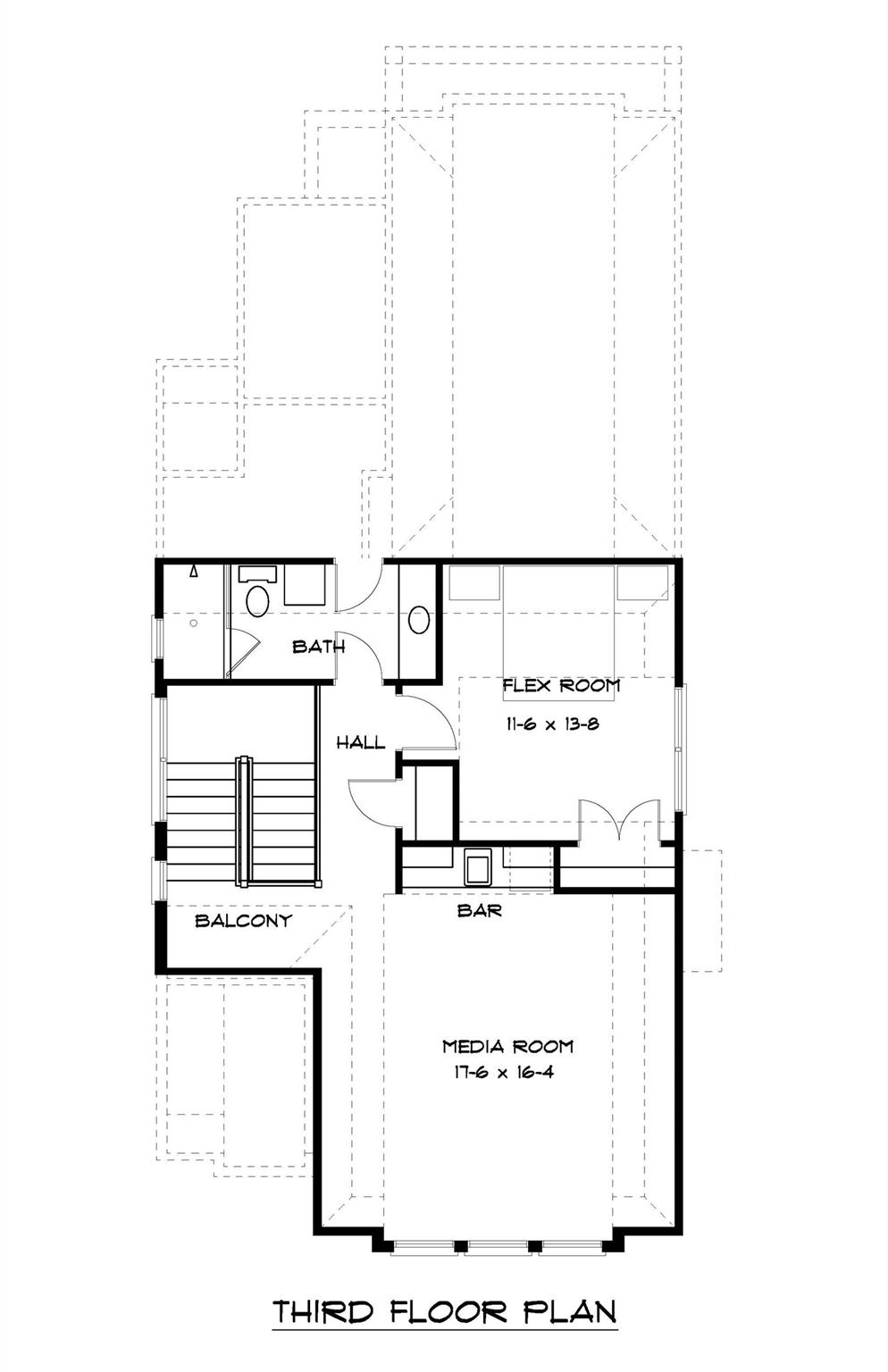
The Yadkin design is Grandfather Homes’ reimagined take on the classic NoDa bungalow, modernized with conveniences like 2-car detached garage and smart home technology. Thoughtfully designed in partnership with Elite Design Group, this residence features an open-concept main level anchored by a Thermador kitchen with oversized island that flows seamlessly into the dining area and living room with gas fireplace. The primary suite showcases a spa-inspired bathroom and generous walk-in closet. The third level expands your living possibilities with a spacious media room featuring a wet bar and an adjoining bedroom suite ideal for visitors or a private home office. Nestled within an intimate streetscape of nine custom homes in The Heirloom at Mattie Rose, this property blends luxury, sustainability, and effortless access to NoDa’s dining, nightlife, and creative culture. It’s true “art-itecture”—design elevated for everyday living.
Property Type:
Residential
Map
This property is a listing of Grandfather Homes Inc..Listings courtesy of Canopy MLS as distributed by MLS GRID.
© 2025 Canopy MLS. All rights reserved.
Claims of Copyright Infringement & Related Issues (17 USC § 512 et seq.)
