705 Wingrave Drive
Charlotte, NC
$2,995,000
Details & Amenities
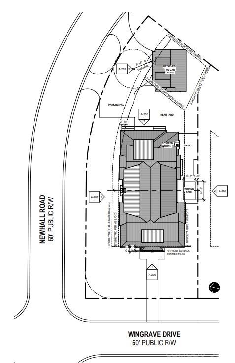
Gorgeous New Construction in the Heart of Lansdowne! Welcome to 701 Wingrave Drive, a stunning new construction masterpiece nestled on one of the most desirable corner lots in Lansdowne. This stately home offers over 5,100 square feet of beautifully designed living space, featuring 5 bedrooms and 5.5 baths. The main level primary suite provides luxurious comfort and convenience, while a second main-level bedroom with a full bath offers incredible flexibility—perfect for a home office, mother-in-law suite, or guest bedroom. Upstairs, you’ll find three additional bedrooms, each with their own ensuite bath, along with a spacious bonus room that’s ideal for a playroom, media room, or secondary living space. Enjoy seamless indoor-outdoor living with a covered rear porch and outdoor fireplace, ideal for entertaining or relaxing year-round. The detached two-car garage enhances the home’s curb appeal, while the .37-acre corner lot offers privacy and the perfect opportunity to add a plunge pool or garden retreat. This is a rare opportunity to build semi-custom in one of Charlotte’s most established and beloved neighborhoods. With tree-lined streets and an unbeatable central location, you’ll enjoy easy access to SouthPark, Cotswold, Uptown, the Arboretum, and Matthews—plus you're right inside Charlotte’s premier private-school corridor. Get in early to personalize your finishes and create the home of your dreams in Lansdowne—where classic charm meets modern luxury. Built by Bird Dog Group, a renowned builder known for his uncompromising craftsmanship, this home spares no detail. Every element—from the architectural design to the finishes and fixtures—reflects top-notch quality and timeless style.
Property Type:
Residential
Map
This property is a listing of COMPASS.Listings courtesy of Canopy MLS as distributed by MLS GRID.
© 2026 Canopy MLS. All rights reserved.
Claims of Copyright Infringement & Related Issues (17 USC § 512 et seq.)
