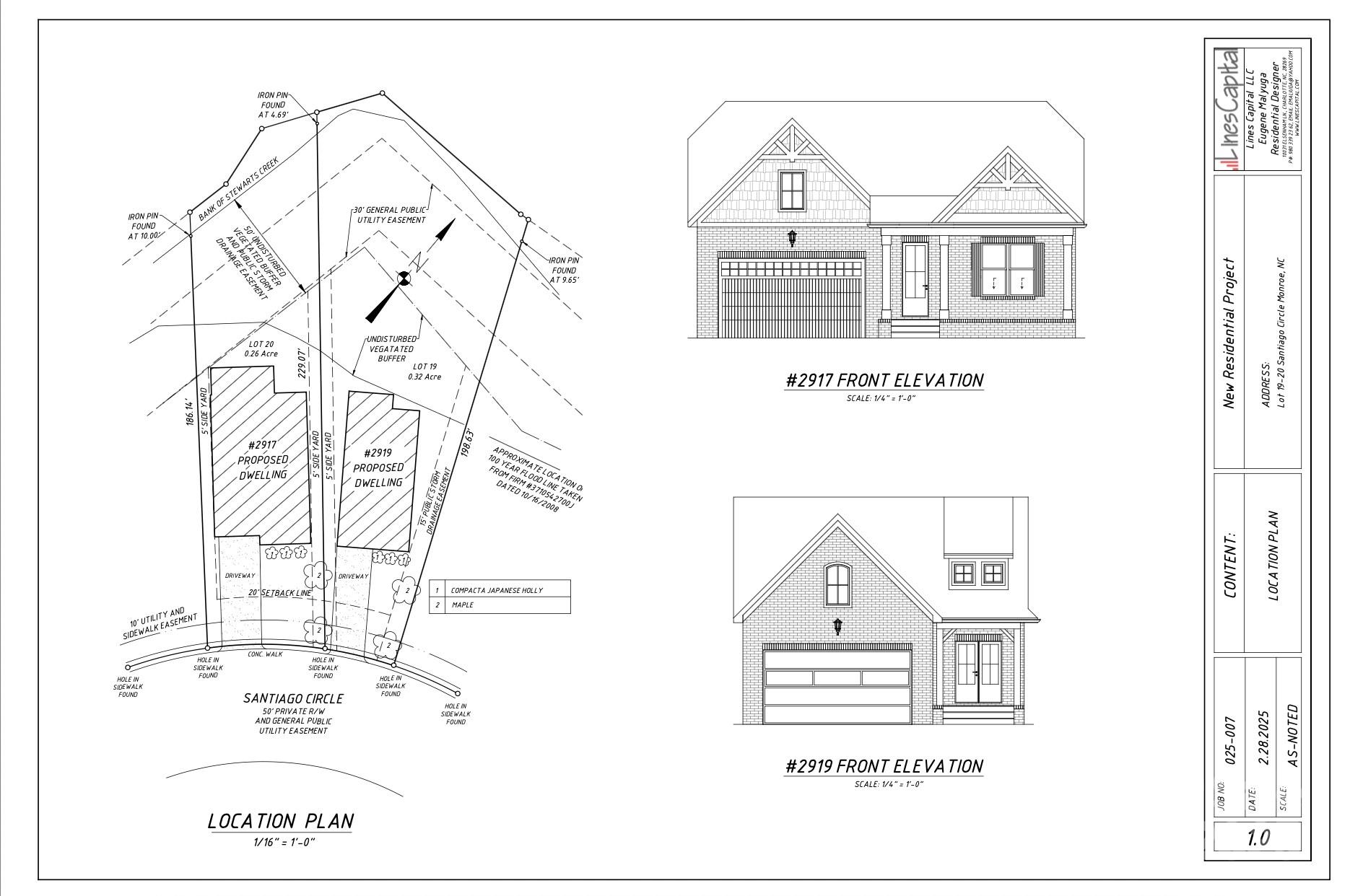
2917 Santiago Circle
Monroe, NC
$480,000
Details & Amenities
Discover the opportunity to build your dream home in this desirable, established neighborhood. This beautiful full-brick, single-story ranch will be custom-built with quality craftsmanship and modern design. The floor plan has already been selected and permits have been applied for—saving you time—yet you still have the rare opportunity to personalize the interior finishes to suit your style.
Enjoy the flexibility to choose your preferred flooring, countertops, cabinetry, fixtures, and more, allowing your new home to truly reflect your taste and vision. The layout offers comfortable one-level living and a thoughtful design that blends functionality with elegance. The property is connected to city water and city sewer, providing convenience and reliable. The adjacent lot at 2919 Santiago Cir is also available and will feature a different floor plan. This gives you the option to select the design that best fits your lifestyle and needs—whether you prefer this layout or the alternative plan next door.
Located in a convenient area with highly rated schools, this homesite offers easy access to shopping, dining, major roads, and everyday amenities, all within a well-maintained and welcoming community.
Don’t miss the chance to create a home that’s uniquely yours—your custom dream home awaits!
Property Type:
Residential
Map
This property is a listing of Keller Williams Ballantyne Area.Listings courtesy of Canopy MLS as distributed by MLS GRID.
© 2026 Canopy MLS. All rights reserved.
Claims of Copyright Infringement & Related Issues (17 USC § 512 et seq.)
