2010 Monticello Drive
Gastonia, NC
$525,000
Status: Active Under Contract
Beds: 4
Full Baths: 3
Sq ft: 3322
Sub Division: Monticello Woods
Elementary School: Gardner Park
Middle School: Holbrook
High School: Ashbrook
Year Built: 1967
Acerage: 0.421 Acres
MLS #: 4325687
Status: Active Under Contract
Facebook Twitter Pinterest Instagram eMail To

Details & Amenities

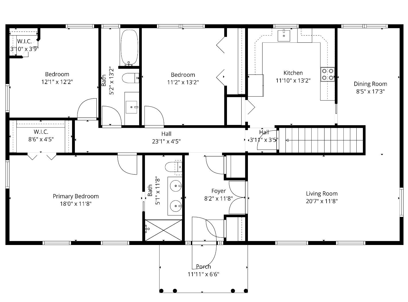
2010 Monticello Drive, located in Monticello Woods, boasts hardwood floors, custom cabinetry, quartz countertops, a walk out lower level with tile floors, in-ground pool, and fenced yards. With more than .42 acres, this property is just what you are looking for. There are 3 bedrooms and 2 bathrooms on the main floor along with a large living room, kitchen and dining room. The lower level includes a great room, bedroom, full bathroom, den/flex room and huge sunroom with walkout access to the carport, pool and rear yard. Kitchen updates include full overlay cabinetry with quartz countertops, stainless steel, kitchenaid appliances, reclaimed brick flooring, large crown molding and new pantry shelving. The solid surface floors on both levels provide ease of maintenance as well as ample room to entertain. With exterior updates in the past five years including french drains, rv parking, pool deck, pool liner, pool pump and components, increased lot size, fenced play yard and pool area; this brick ranch with a walkout lower level is ready for you to call it home. Located off Redbud Drive, this home is minutes from Hwy 74 & 85 and a short drive to 485. Survey, Floor plan, upgrades and disclosures available in mls media and by request. Make an appointment to see 2010 Monticello Drive today.
Property Type:
Residential


Map
This property is a listing of Carolina Homes Connection, LLC.
Listings courtesy of Canopy MLS as distributed by MLS GRID.
© 2026 Canopy MLS. All rights reserved.
Claims of Copyright Infringement & Related Issues (17 USC § 512 et seq.)