5009 Stevedore Way
Charlotte, NC
$289,990
Details & Amenities
Last Building - best location right next to Dillon Lakes - Discover the lifestyle you’ve been dreaming of in this stunning, brand-new 3-story townhome—perfectly located just minutes from I-77 and I-85! Tucked away in a charming community, you’ll enjoy peace and privacy while staying close to everything Charlotte has to offer—Camp North End, University City, and Uptown are all within easy reach.
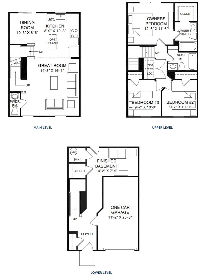
Step inside and fall in love with the modern open-concept design where the kitchen, dining, and family room flow seamlessly together—ideal for entertaining or relaxing. Your gourmet kitchen shines with granite countertops, a spacious center island, 36" cabinets, and GE stainless steel appliances (yes, the refrigerator is included!). Upstairs, retreat to three generous bedrooms and a convenient laundry area complete with GE white washer and dryer.
The finished lower-level flex space is perfect for a home office, gym, or cozy movie room. Outside, enjoy your private backyard oasis with a large patio and privacy panels—perfect for grilling or hosting friends. Plus, you’ll have a 1-car garage for added convenience.
Whether you’re looking for your primary residence or an investment opportunity, this home offers unbeatable value and special financing options with our preferred lender. Don’t miss your chance to own a stylish townhome in one of Charlotte’s most centrally located areas - your dream home awaits! To be built. Photos for illustrative purposes. Smart investment or private residence. Price is based on cash purchase.
Property Type:
Residential
Map
This property is a listing of NVR Homes, Inc./Ryan Homes.Listings courtesy of Canopy MLS as distributed by MLS GRID.
© 2025 Canopy MLS. All rights reserved.
Claims of Copyright Infringement & Related Issues (17 USC § 512 et seq.)
