1736 Williamsburg Drive
Rock Hill, SC
$560,000
Details & Amenities
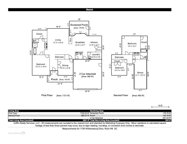
Lakeview semi-custom home by builder Andrew Alosi with lake access to a peaceful, motor-free lake ideal for kayaking and canoeing. Enjoy fish, ducks, turtles, and a private backyard next to HOA common area. Single-owner home with primary suite on main level, 3 bedrooms plus bonus room. Features include 3-inch oak flooring, coffered great room ceiling, wainscoting in office and dining room, granite countertops in kitchen and baths, stainless steel appliances, custom stone fireplace with fossil accents, and screened/covered porch with storage. Spacious primary suite with vaulted ceiling and large bath. New 40-year hail-resistant roof (June 2024). Oversized garage with epoxy floor and keypad entry. South-facing windows include UV film and double-tilt design. Crawlspace with dehumidifier and moisture barrier. Front porch with fan, storm doors with optional screens, extra outlets, and exterior rear spigot. Close Proximity to York Preparatory Academy only 1.4 miles away!
Property Type:
Residential
Map
This property is a listing of Coldwell Banker Realty.Listings courtesy of Canopy MLS as distributed by MLS GRID.
© 2026 Canopy MLS. All rights reserved.
Claims of Copyright Infringement & Related Issues (17 USC § 512 et seq.)
