1342 Fremont Drive
Wingate, NC
$425,000
Details & Amenities
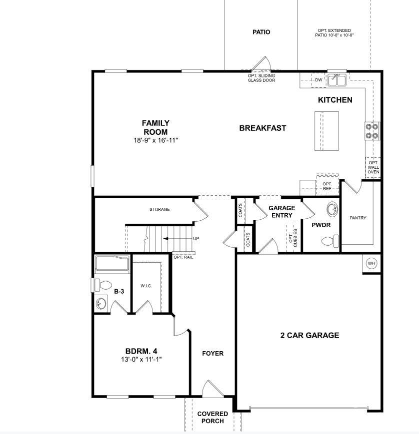
Welcome to the Savoy at Canterbury Station! This community is located just minutes from Wingate University & offers all the amenities needed for a functional lifestyle. This beautiful home is set to impress with modern features & elegance. Entering the home from the front covered porch, you are greeted with an inviting and homey foyer. Off to the side, you'll find a main level guest bedroom with a private full bathroom and walk-in closet to ensure your guests have privacy and comfort. The home will open up when entering your main living area. The kitchen is equipped with stainless steel appliances, a French door refrigerator, kitchen island and quartz counter tops. The breakfast area allows for sit down meals & extra space. Walk out the sliding door to your extended patio to enjoy entertaining or a morning coffee. The family room is spacious and open, allowing for a sectional as well as additional furniture. Throughout the main living areas is easily maintainable EVP flooring for easy cleaning. Throughout the home the windows have been accented with 2" faux wood blinds to add another layer of elegance. Upstairs you will find 2 additional bedrooms, a shared bathroom and the laundry room, complete with a washer and dryer. The spacious loft provides an additional area to entertain or relax. The Owner's suite is designed to maximize comfort with plenty of natural lighting, you'll find relaxtion will come easy. The walk-in closet allows for plenty of space for all your wardrobe needs. Finally, the en-suite is nothing short of spa-like. With a dual vanity, private toilet area & tiled shower. Welcome to your new home!
Property Type:
Residential
Map
This property is a listing of M/I Homes.Listings courtesy of Canopy MLS as distributed by MLS GRID.
© 2026 Canopy MLS. All rights reserved.
Claims of Copyright Infringement & Related Issues (17 USC § 512 et seq.)
