12416 Sylvan Oak Way
Charlotte, NC
$539,000
Details & Amenities
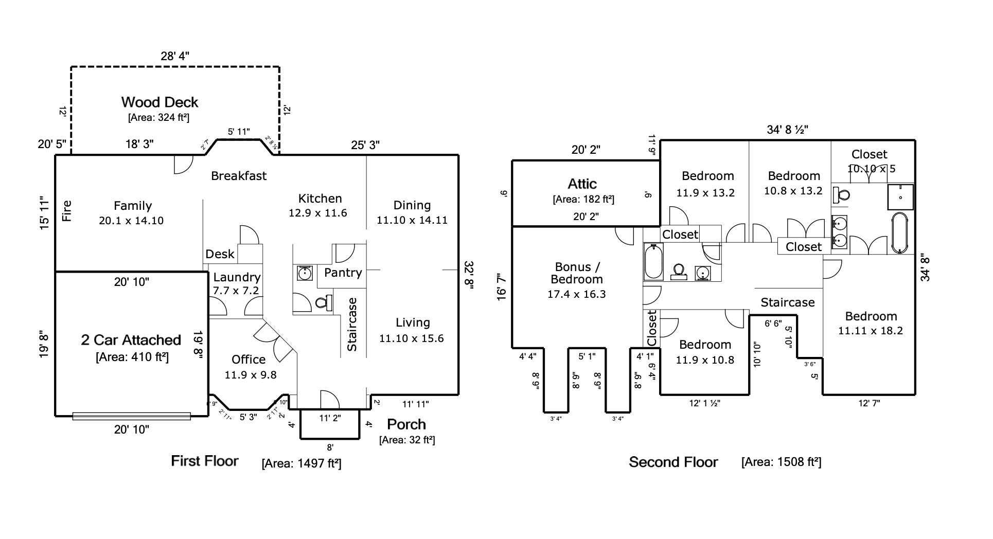
Welcome to 12416 Sylvan Oak Way, located in the established Oak Ridge section of The Crossings neighborhood in Charlotte’s desirable Steele Creek area. With just over 3,000 square feet of thoughtfully designed space, this 5-bedroom home with multiple flexible living areas offers comfort and functionality.
The home greets you with a two-story foyer and a layout that feels both open and connected. Just off the entry, there is a dedicated office to the left, ideal for remote work or homework, and a living space to the right that flows into a formal dining room with easy access to the kitchen. The central hub of the home includes granite counters, kitchen island, stainless appliances, and a casual breakfast nook overlooking the backyard. The family room sits just beyond, featuring a brick fireplace with gas logs and a door that leads to the backyard, extending your living space outdoors.
Upstairs, 4 bedrooms plus a 5th bedroom or flex room offer plenty of space for sleeping, play, study, or media needs. The primary suite features a spacious en-suite bath with a frameless tile shower and separate garden tub. A second full bath with tile wall accents add both style and function for the rest of the family. Crown molding throughout the main level adds a touch of refinement, while practical features like a laundry room with sink, ample closet space, walk-in pantry, and an efficient floor plan contribute to everyday ease.
Step outside to enjoy a fenced backyard framed by mature trees, ideal for gatherings, play, or peaceful relaxation. The deck boards were replaced and new vapor barrier was installed in the crawl space in 2025.
This home balances quiet neighborhood living with everyday convenience to nearby shopping, schools, and major roadways. Residents of The Crossings enjoy access to community amenities including a pool, clubhouse, and playground, adding even more value to everyday living.
If you’re looking for a spacious home with a flexible layout, thoughtful updates, and room to add your own finishing touches, 12416 Sylvan Oak Way offers lasting potential in one of Charlotte’s most convenient locations.
Property Type:
Residential
Map
This property is a listing of EXP Realty LLC Ballantyne.Listings courtesy of Canopy MLS as distributed by MLS GRID.
© 2026 Canopy MLS. All rights reserved.
Claims of Copyright Infringement & Related Issues (17 USC § 512 et seq.)
