11203 Chapeclane Road
Charlotte, NC
$465,000
Details & Amenities
CORNER LOT | 5 BEDROOMS | CLARABELLA | CHARLOTTE, NC
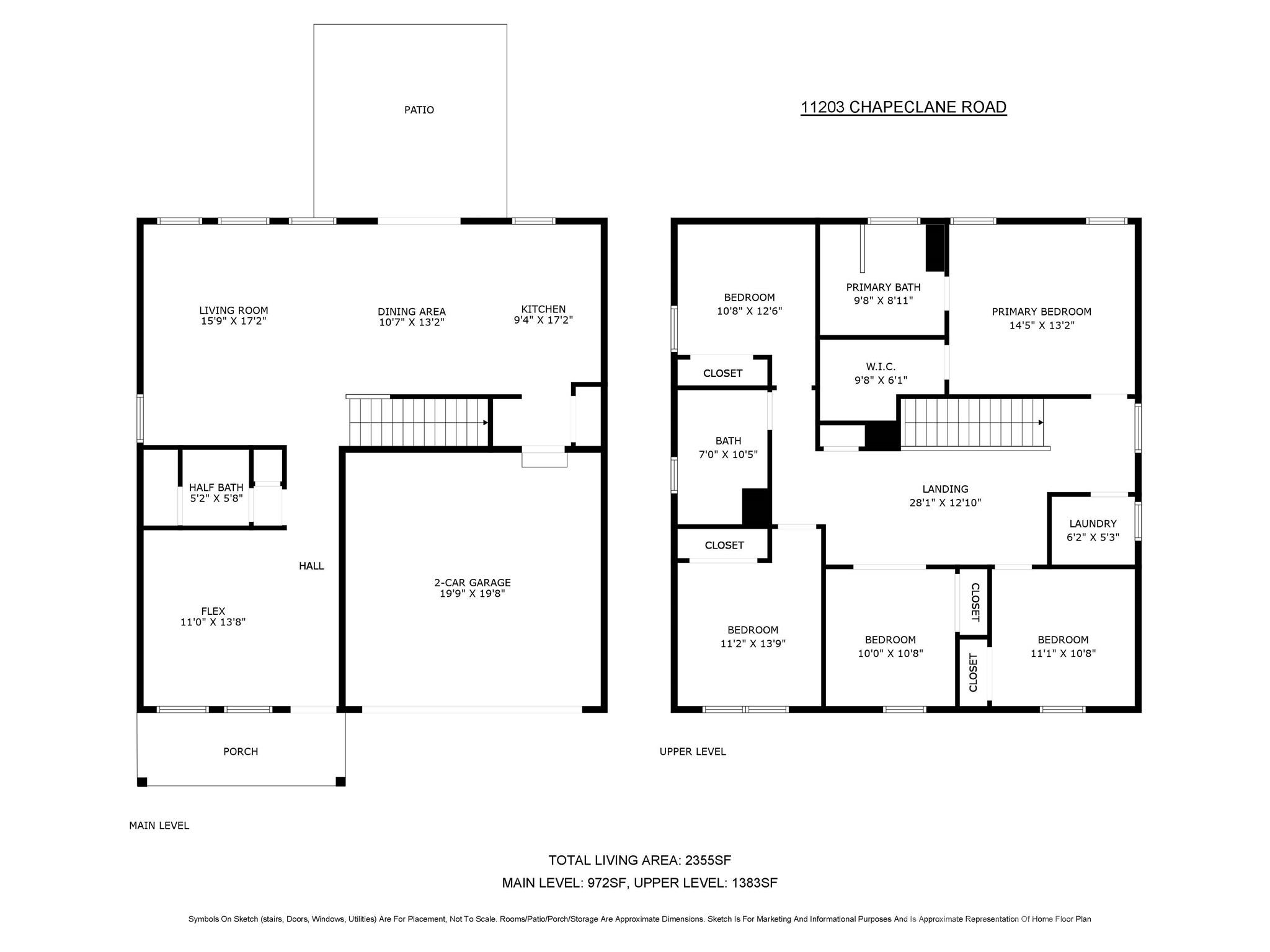
Discover space, style, and unbeatable convenience in this beautifully maintained 5-bedroom, 2.5-bath home located in the highly sought-after Clarabella community in Charlotte, North Carolina. Positioned on a premium corner lot, this home offers extra privacy, curb appeal, and one of the most desirable placements in the neighborhood.
Step inside to a bright, open two-story floor plan featuring hardwood floors, plush carpeting, and a seamless flow between the living areas and kitchen—perfect for both everyday living and entertaining. The spacious kitchen opens directly to the main living area, making it ideal for gatherings, hosting guests, or relaxing nights at home.
Upstairs, you’ll find generously sized bedrooms that provide the flexibility today’s buyers want—whether you need a home office, guest room, fitness space, or playroom. The layout was designed for modern lifestyles, offering both comfort and function.
Out back, enjoy a private fenced-in yard with lush Bermuda grass and a peaceful patio—perfect for grilling, pets, or outdoor relaxation. The attached garage includes a built-in electric vehicle charging station, adding both convenience and long-term value.
This home is located just minutes from Carowinds, Charlotte Douglas International Airport, major highways, shopping, dining, and the South Carolina border, making it one of the most commuter-friendly locations in the Charlotte metro area.
Homes in Clarabella are known for their quality, location, and community feel—and opportunities like this don’t last long. If you’re searching for a move-in ready 5-bedroom home in Charlotte with space, upgrades, and unbeatable access to everything the city offers, this is the one.
Property Type:
Residential
Map
This property is a listing of EXP Realty LLC Ballantyne.Listings courtesy of Canopy MLS as distributed by MLS GRID.
© 2026 Canopy MLS. All rights reserved.
Claims of Copyright Infringement & Related Issues (17 USC § 512 et seq.)
