164 Fox Croft Road
Rock Hill, SC
$375,000
Details & Amenities
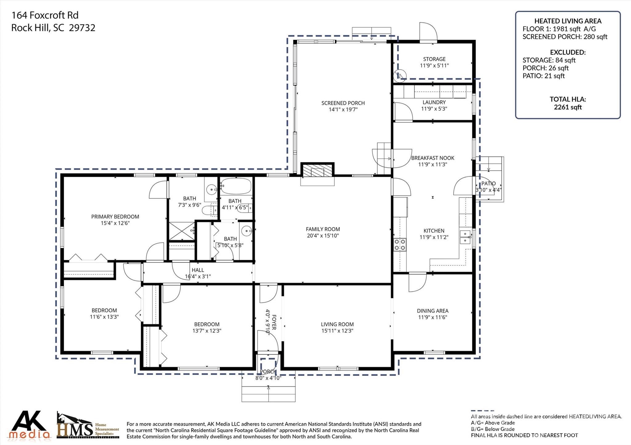
This classic Rock Hill home is full of potential and ready for its next owners. There are few like it in the area, an all brick ranch with 3 bedrooms and 2 bathrooms and a huge flat yard. Did I mention location? 164 Foxcroft is central to most everything in Rock Hill - downtown, hospital and medical offices, shopping, the airport and in a good location between York and Fort Mill. When you enter this home, you will see a formal living area and dining area, a cozy den with a wood stove and a large eat-in kitchen. The windows have plantations shutters throughout and you will find skylights in the den and the sunroom. Even the laundry room is unique - washer and dryer included -with lots of cabinet storage. As you go out into the backyard, you will find a large heated sunroom, a generous patio and an outdoor shed. This house is special and when spring comes the daffodils and trees will be beautiful! In the fall, the gutter guards on the gutters will keep you from having to clean them out. Don’t miss it - this house is special!
Property Type:
Residential
Map
This property is a listing of Keller Williams Connected.Listings courtesy of Canopy MLS as distributed by MLS GRID.
© 2026 Canopy MLS. All rights reserved.
Claims of Copyright Infringement & Related Issues (17 USC § 512 et seq.)
