814 Bertonley Avenue
Charlotte, NC
$1,996,000
Details & Amenities
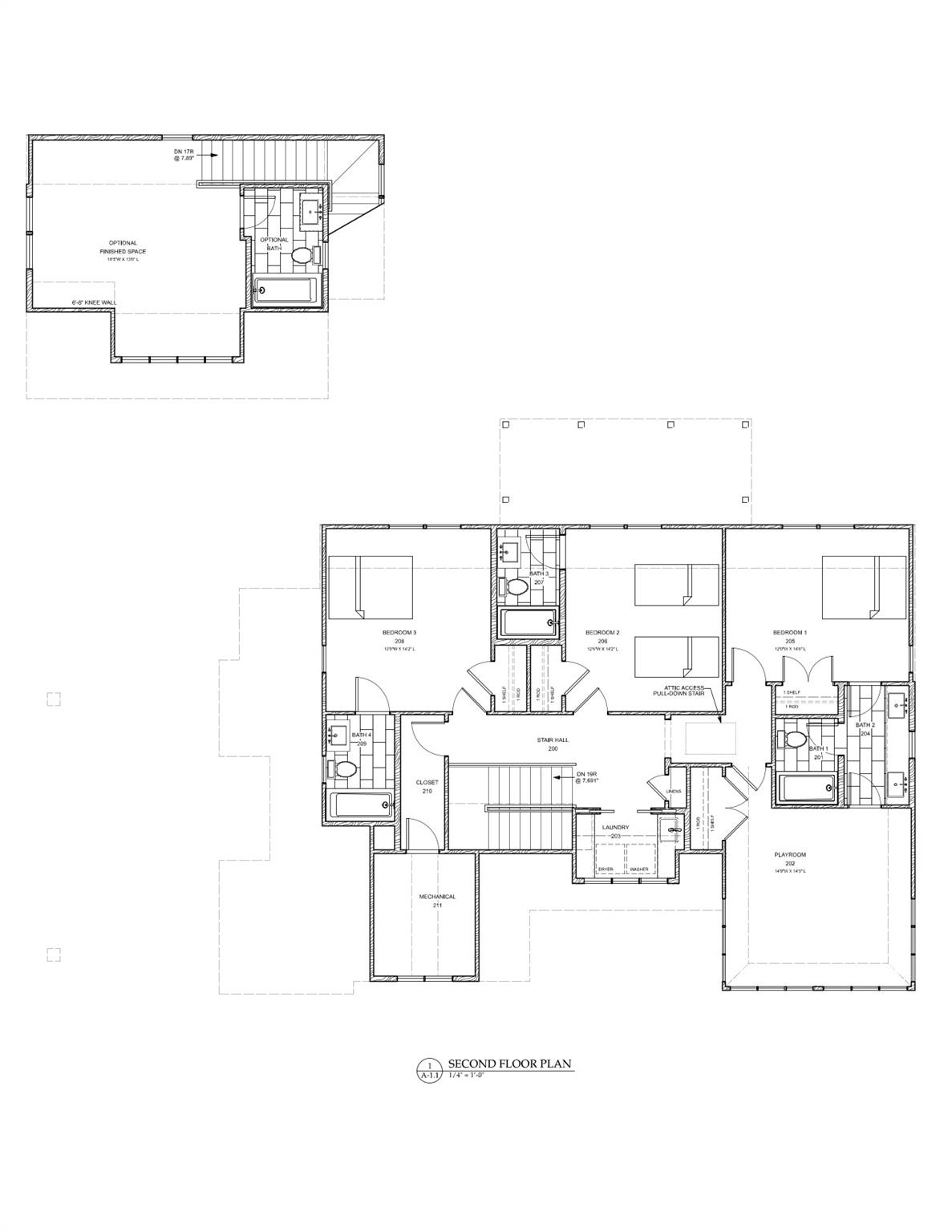
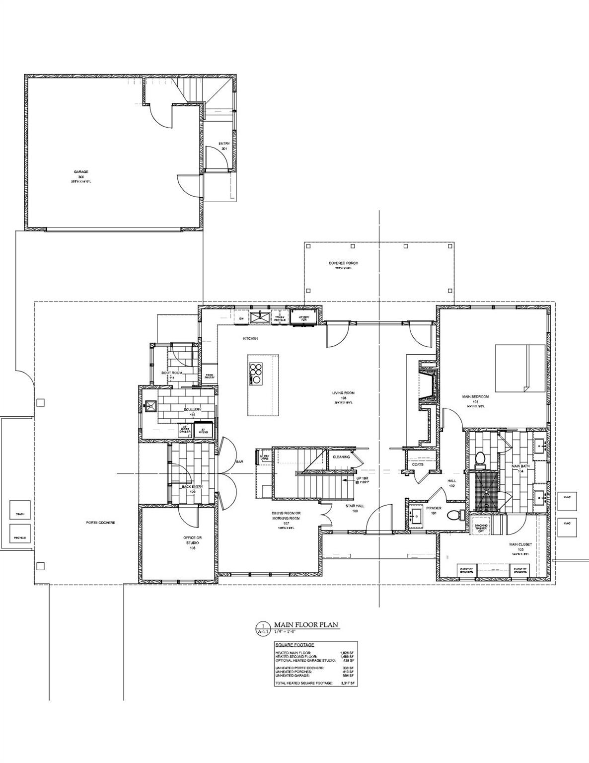
Fantastic opportunity to build a custom luxury home in desirable Cotswold with Halley Douglas, Inc. Flat lot with beautiful new homes going up all around it. Home in rendering was designed for the lot and is 3234 sqft with primary down. It has 4 bedrooms, 3.1 Baths. Lot is close to Cotswold Shopping Center and a short drive to uptown Charlotte, world class hospitals and upscale Southpark Mall. Convenient to neighborhood schools. Buyer to purchase the lot for $695,000 and contract with Halley Douglas Inc to build home. Price of lot is included in the total listing cost. Home pictured is a starting point and can be customized to fit buyer's needs. Primary suite can be moved to second floor if desired. Selections are subject to allowances. Proposed home has option of second living quarters above detached garage.
Property Type:
Residential
Map
This property is a listing of Savvy + Co Real Estate.Listings courtesy of Canopy MLS as distributed by MLS GRID.
© 2026 Canopy MLS. All rights reserved.
Claims of Copyright Infringement & Related Issues (17 USC § 512 et seq.)
