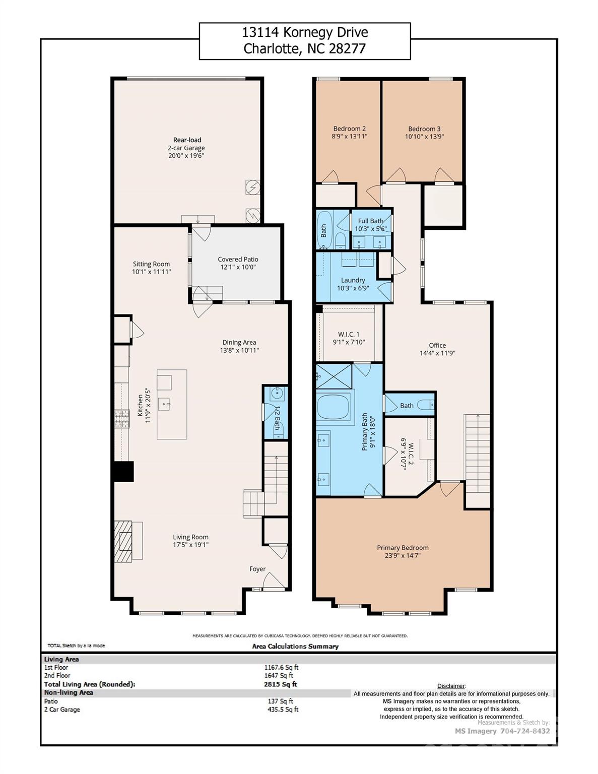
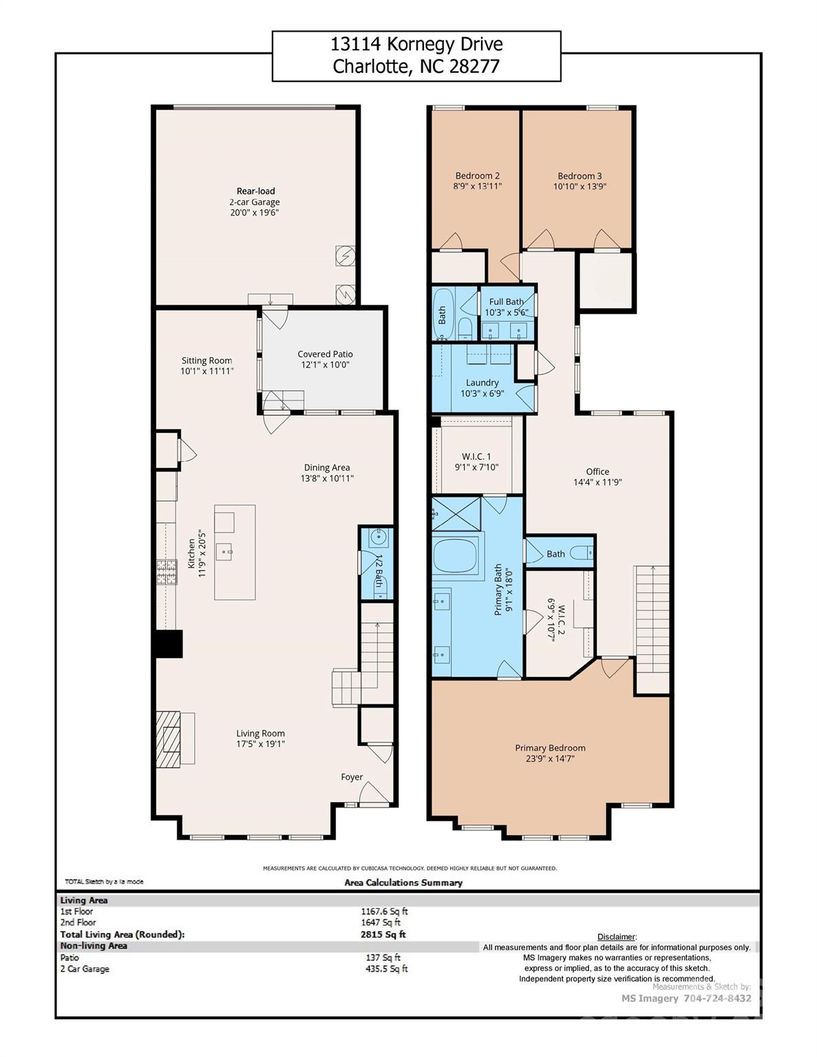
13114 Kornegy Drive
Charlotte, NC
$749,000
Status: Active
Beds: 3
Full Baths: 2
Half Baths: 1
Sq ft: 2815
Sub Division: Southridge
Elementary School: Hawk Ridge
Middle School: Community House
High School: Ardrey Kell
Year Built: 2018
Acerage: 0.06 Acres
MLS #: 4342893
Status: Active
Facebook Twitter Pinterest Instagram eMail To

Details & Amenities

Enjoy easy living in the heart of Ballantyne! With very little maintenance, this townhome leaves you more time to have fun and enjoy all that the Ballantyne area has to offer. You will fall in love right as you walk through the front door. The current owners have made extensive updates to the home including new kitchen and bathroom countertops, plantation shutters, an additional 50 gallon water heater, new Bosch dishwasher, hardwood on stairs, fresh paint throughout the home including an accent wall in primary bedroom, California closets in the primary bedroom and kitchen pantry, new wallpaper in the primary bathroom, sitting room, and downstairs powder room, plus upgraded light fixtures in kitchen, bathrooms and dining area! Enjoy morning coffee or wind down in the evenings on the private, enclosed patio. There is a 2 car garage for parking convenience! The HOA maintains the lawns with weekly mowings along with shrub trimming and pine needles twice a year. Easy access to 485, Morrison YMCA, highly rated neighborhood schools and The Ballantyne Bowl.
Property Type:
Residential


Map
This property is a listing of Helen Adams Realty.
Listings courtesy of Canopy MLS as distributed by MLS GRID.
© 2026 Canopy MLS. All rights reserved.
Claims of Copyright Infringement & Related Issues (17 USC § 512 et seq.)