4218 Sourwood Court
Indian Land, SC
$560,000
Details & Amenities
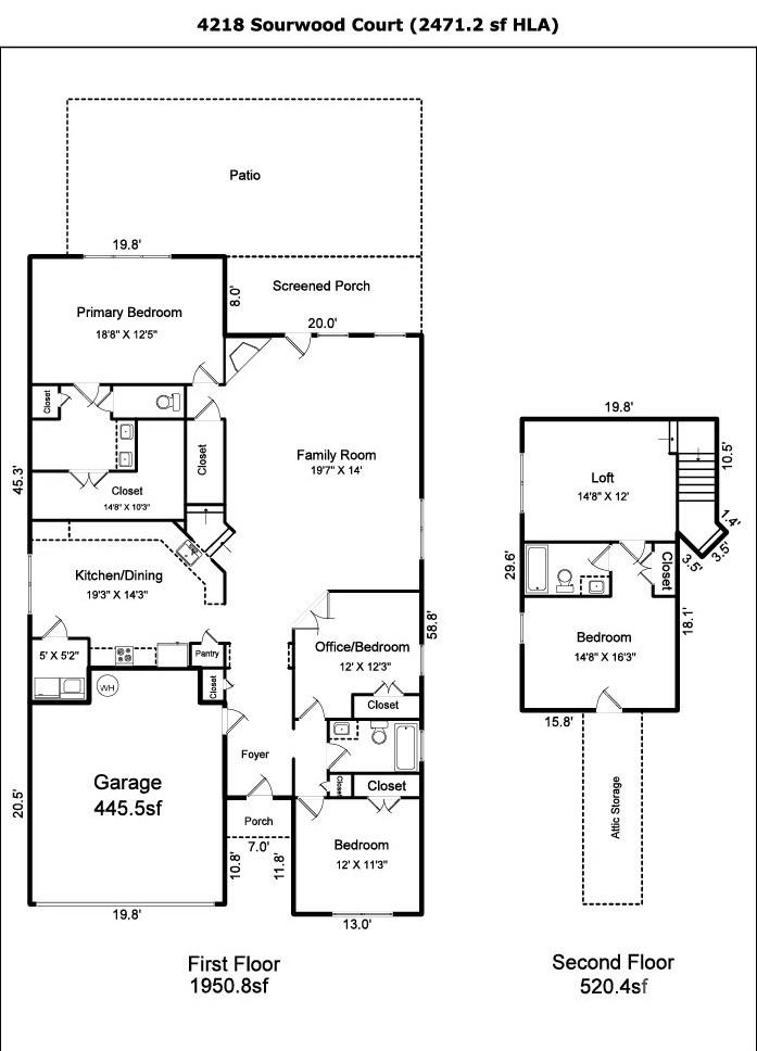
STUNNING! UPDATED! PRIME LOCATION! This beautiful home tucked away on a quiet cul-de-sac street is a must-see GEM! From the minute you walk in, graceful archways, architectural nooks, new white oak flooring, and exquisite molding exhibit timeless charm at every turn. This 3-bedroom, 3-bath home offers plenty of flexibility with a multitude of living areas including a flex space, ideal for an office, craft room or even a 4th bedroom.
The spacious living room flows seamlessly into an open-concept dining area and features a cozy gas log fireplace and a wall of windows allowing for maximum natural light. Walk out the living room through french doors onto the screened-in porch with cooling ceiling fan and privacy shades.
The updated kitchen has that WOW factor! Beautiful and functional featuring high-quality white cabinetry with roll-out shelves, stainless steel appliances, stunning tile work, eat-in dining space and an open archway that provides a lovely view of the main living area.
The primary suite is conveniently located on the backside of the home overlooking the tranquil backyard. Featuring a trey ceiling, ensuite bath with dual vanities, glass shower and custom walk-in closet. Guest suite is situated at the front of the home with access to a full hall bath. Upstairs, you’ll find an additional suite with full bath and a loft - ideal for visiting guests or multi-generational living.
Additional highlights include a generous walk-in attic, a large storage closet under the stairs, and an extra utility sink in the garage installed in 2025.
Enjoy outdoor living at its finest on the expansive stone paver patio overlooking the thoughtfully landscaped yard featuring a new fence (2025), irrigation system with drip lines for newer plantings, and a convenient stone pathway from the front yard to the backyard.
This charming home offers inviting curb appeal, mature landscaping, and tree-lined streets in the highly desirable Indian Land area. Within walking distance to the neighborhood pool, clubhouse, and local grocery store.
Conveniently located to the new Target, Costco, YMCA, restaurants, medical and banking, this home combines comfort, style, luxury and an unbeatable location. ***Make sure to check out the FULL list of updates and upgrades in attachments.
Property Type:
Residential
Map
This property is a listing of RE/MAX Executive.Listings courtesy of Canopy MLS as distributed by MLS GRID.
© 2026 Canopy MLS. All rights reserved.
Claims of Copyright Infringement & Related Issues (17 USC § 512 et seq.)
