1719 Boulder Ridge Drive
Gastonia, NC
$435,990
Details & Amenities
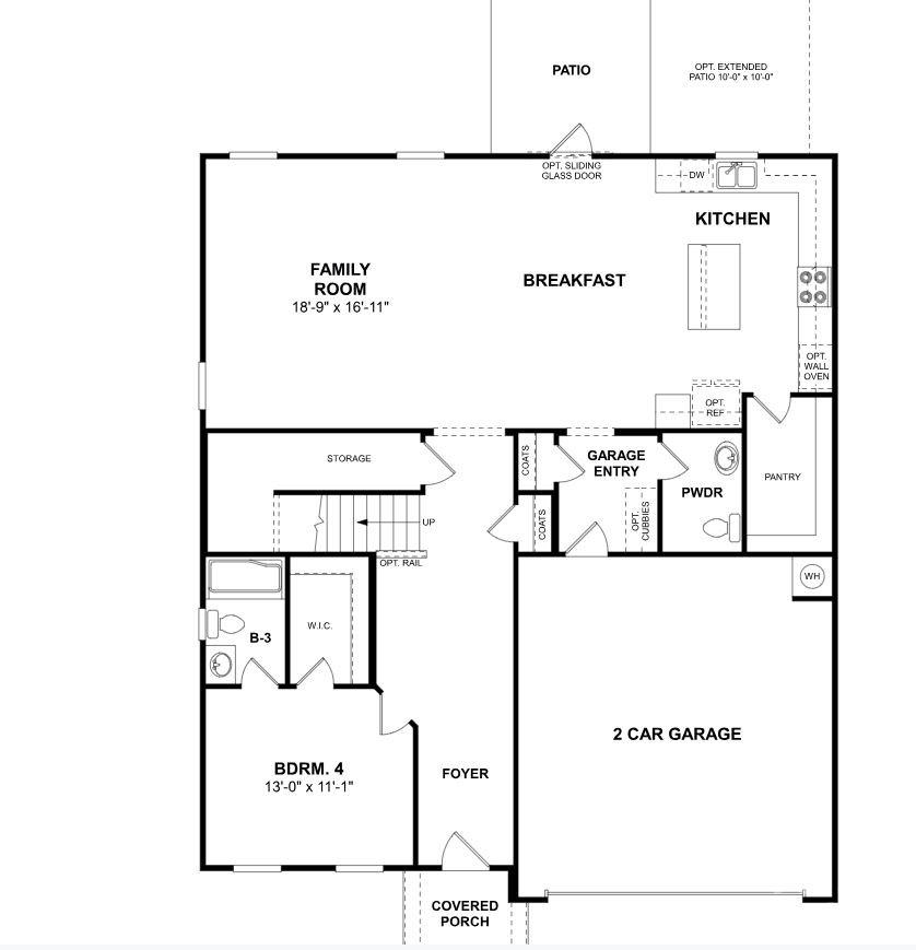
Welcome to the Savoy! This beautiful home is set to impress with modern features & elegance. Entering the home from the front covered porch, you are greeted with an inviting and homey foyer. Off to the side, you'll find a main level guest suite with its own private full bathroom. The home will open up when entering your main living area. The kitchen is equipped with stainless steel appliances, French door refrigerator, kitchen island and quartz counter tops. The breakfast area allows for sit down meals & extra space. Walk out the rear sliding glass door to your extended patio to enjoy entertaining or a morning coffee. The family room is spacious and open, allowing for a sectional as well as additional furniture. Throughout the main living areas is easily maintainable EVP flooring for easy cleaning as well as 2" faux wood blinds throughout the home. Upstairs you will find 2 additional bedrooms, a shared bathroom and the laundry room, complete with a washer and dryer. The spacious loft provides an additional area to entertain or relax. The Owner's suite is designed to maximize elegance and relaxation. The walk-in closet allows for maximum space for all your wardrobe needs. Finally, the en-suite is nothing short of spa-like. With a dual vanity, private toilet area & tiled shower. Boulder Ridge is located minutes from Crowder’s Mountain and has enhanced the surrounding landscape. The planned amenities have been designed to preserve the natural scenery as well as provide entertainment for every lifestyle. The natural walking trails highlight the natural beauty of the area and are also equipped with benches throughout for a quick rest or to enjoy nature. The community pool and cabana will be perfect for those hot summer days and features in pool sunbathing seating. The star of the amenities will be the disc golf course. This amenity is rarely seen throughout other communities and will provide a fun and unique experience for everyone. Welcome to your new home!
Property Type:
Residential
Map
This property is a listing of M/I Homes.Listings courtesy of Canopy MLS as distributed by MLS GRID.
© 2026 Canopy MLS. All rights reserved.
Claims of Copyright Infringement & Related Issues (17 USC § 512 et seq.)
