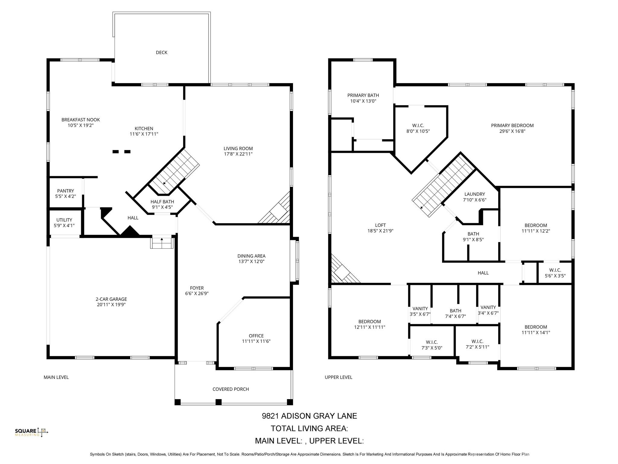
9821 adison gray Lane
Charlotte, NC
$899,950
Details & Amenities
This exceptional 4-bedroom, 3.5-bath home (3,582 SQF) blends timeless elegance with modern upgrades, offering refined comfort both inside and out.
*** Interior & Exterior Highlights
• Fully upgraded kitchen featuring quartz countertops & backsplash, brand-new stove and countertop microwave, newer appliances, and modern lighting — perfect for everyday living and stylish entertaining.
• Fresh interior paint throughout provides a bright, refreshed feel.
• Hardwood floors throughout the main and upper levels, with cozy carpet in the Jack & Jill bedrooms.
• Luxurious primary suite with a custom built-in closet; all additional bedrooms include spacious walk-in closets.
• Elegant finishes throughout, including high ceilings, plantation shutters, crown molding, bullnose corner finishes, and custom trim.
• Beautifully designed outdoor space ideal for gardening, relaxing, and enjoying peaceful wooded views.
• Two-car garage plus a spacious backyard shed.
• No HOA fees or restrictions — enjoy flexibility and freedom.
*** Major Updates & Features
• Newly upgraded kitchen (2026)
• New roof (2024)
• Newly installed crawl space vapor barrier (2026)
• Hardwood flooring installed on main and upper levels (˜2019)
• One HVAC system replaced (2020)
*** Top Schools
Providence Spring Elementary
JM Robinson Middle (Assigned per CMS for 2026–2027; buyer to verify)
Providence High School
Directly across from Charlotte Latin School and within 5 minutes of Rea Farms STEAM Academy
*** Prime Location & Unbeatable Convenience
• Close to Waverly, Arboretum, Ballantyne, Uptown Charlotte shopping, dining and entrainment
This home offers the perfect blend of luxury, privacy, top-tier schools, and everyday convenience in one of Charlotte’s most desirable areas.
***OPEN HOUSE***
Feb 27, 28 & March 1 2026
1:00 – 4:00 PM
Come tour this beautiful home in person!
Property Type:
Residential
Map
This property is a listing of Atlas Realty NC LLC.Listings courtesy of Canopy MLS as distributed by MLS GRID.
© 2026 Canopy MLS. All rights reserved.
Claims of Copyright Infringement & Related Issues (17 USC § 512 et seq.)
