5459 Spruce Street
Indian Land, SC
$799,000
Status: Active
Beds: 3
Full Baths: 2
Half Baths: 1
Sq ft: 2013
Sub Division: The Pines at Sugar Creek
Elementary School: Unspecified
Middle School: Unspecified
High School: Unspecified
Year Built: 2026
Acerage: 0.195 Acres
MLS #: 4349575
Status: Active
Facebook Twitter Pinterest Instagram eMail To

Details & Amenities

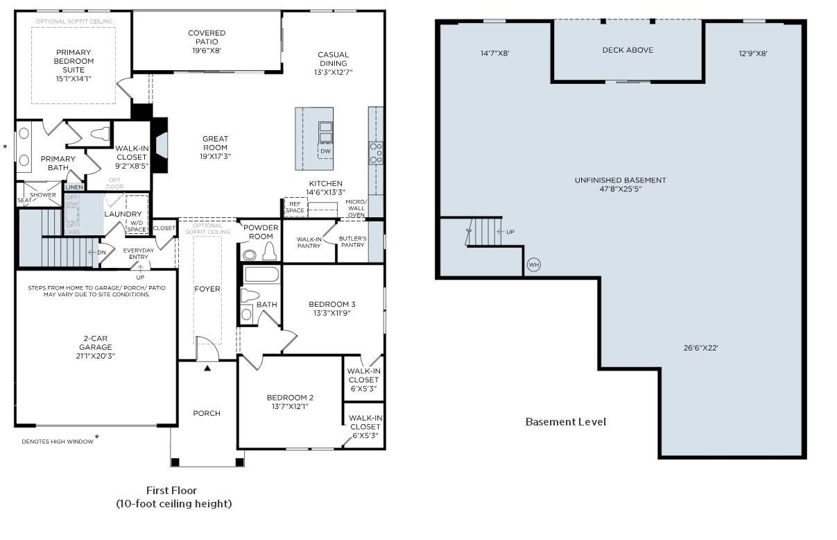
A bright, expansive great room is the heart of the Badin. The casual dining area and large rear covered patio are overlooked by the well-appointed kitchen, complemented by a large center island with breakfast bar, plenty of counter and cabinet space, a sizable walk-in pantry, and a convenient workspace. Highlighting the beautiful primary bedroom suite are an ample walk-in closet and spa-like primary bath with dual vanities, a large luxe shower with seat, linen storage, and a private water closet. Large secondary bedrooms offer versatile entertaining and living options and shared hall bath. Additional highlights include a convenient powder room and everyday entry, easily accessible laundry, and ample additional storage. Full Walkout Basement ready to finish with windows, 6' sliding door, plumbing rough in and 100 amp electrical panel. Located in The Pines at Sugar Creek, a vibrant 55+ community designed for low-maintenance living and an active lifestyle. Community amenities are underway & include a pool, spa, pickleball, tennis & bocce courts, fitness center, clubhouse & more. Prices subject to change.
Property Type:
Residential


Map
This property is a listing of Toll Brothers Real Estate Inc.
Listings courtesy of Canopy MLS as distributed by MLS GRID.
© 2026 Canopy MLS. All rights reserved.
Claims of Copyright Infringement & Related Issues (17 USC § 512 et seq.)