4636 Lakeview Road
Charlotte, NC
$321,361
Status: Active
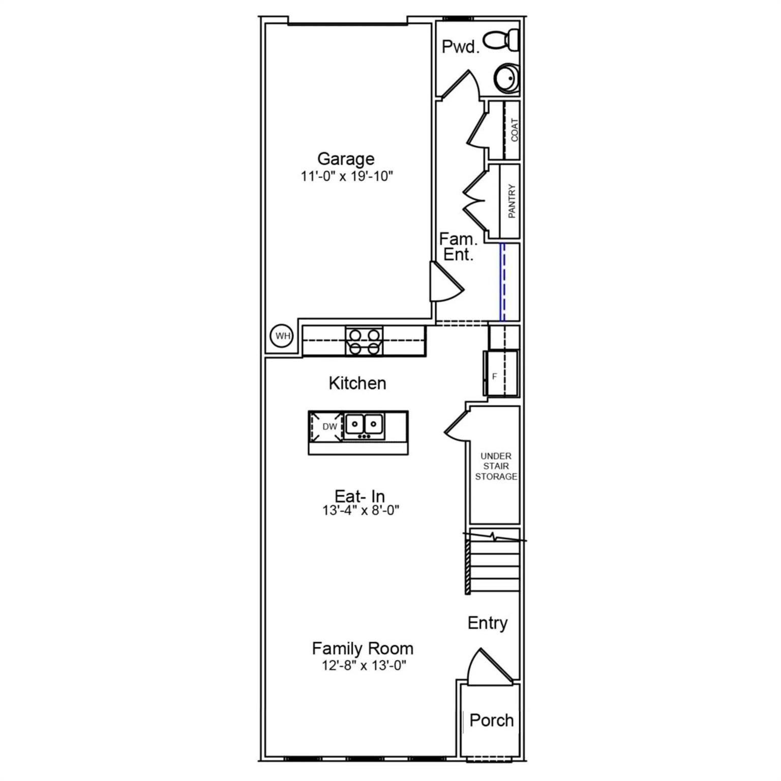
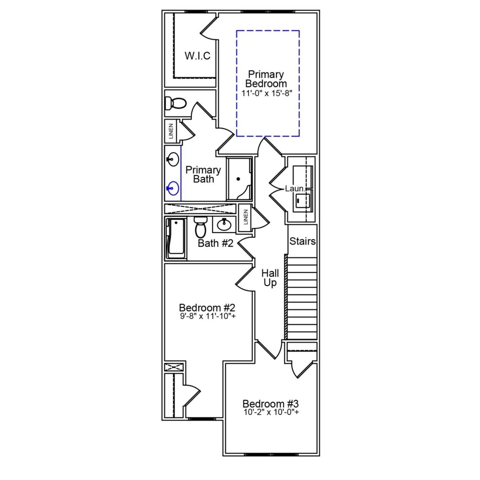
Beds: 3
Full Baths: 2
Half Baths: 1
Sq ft: 1456
Sub Division: Lakeview Village
Elementary School: Hornets Nest
Middle School: Ranson
High School: Hopewell
Year Built: 2026
Acerage: 0.04 Acres
MLS #: 4352510
Status: Active
Facebook Twitter Pinterest Instagram eMail To

Details & Amenities

Discover the charm of this boutique townhome community built by Mungo Homes, a leader in quality craftsmanship & luxury design. This beautiful End-Unit two-story townhome features 3 bedrooms, 2.5 baths, & a rear-entry one-car garage plus double size driveway, offering an open-concept layout with stylish upgrades finishes throughout. The main floor boasts luxury vinyl plank flooring, creating a seamless flow through the bright & airy living spaces. The chef’s kitchen is a standout, featuring a large sitting island w/ quartz countertop, white cabinetry, tile backsplash, pendant lighting, & SS electric appliances! Upstairs, the spacious primary suite impresses w/ a boxed ceiling, generous walk-in closet, & a en suite bath w/ a quartz-topped dual vanity & a tiled walk-in shower. Two additional bedrooms, a full bath, & a convenient laundry closet complete the second level. Located just minutes from Uptown Charlotte, the airport, & shopping, Lakeview Village offers the perfect blend of style, comfort, & convenience. Ask about Move-in package & Financing Promotions! 2025 Parade of Homes GOLD Winner!
Property Type:
Residential


Map
This property is a listing of Mungo Homes.
Listings courtesy of Canopy MLS as distributed by MLS GRID.
© 2026 Canopy MLS. All rights reserved.
Claims of Copyright Infringement & Related Issues (17 USC § 512 et seq.)