2226 Bessbrook Road
Fort Mill, SC
$850,000
Details & Amenities
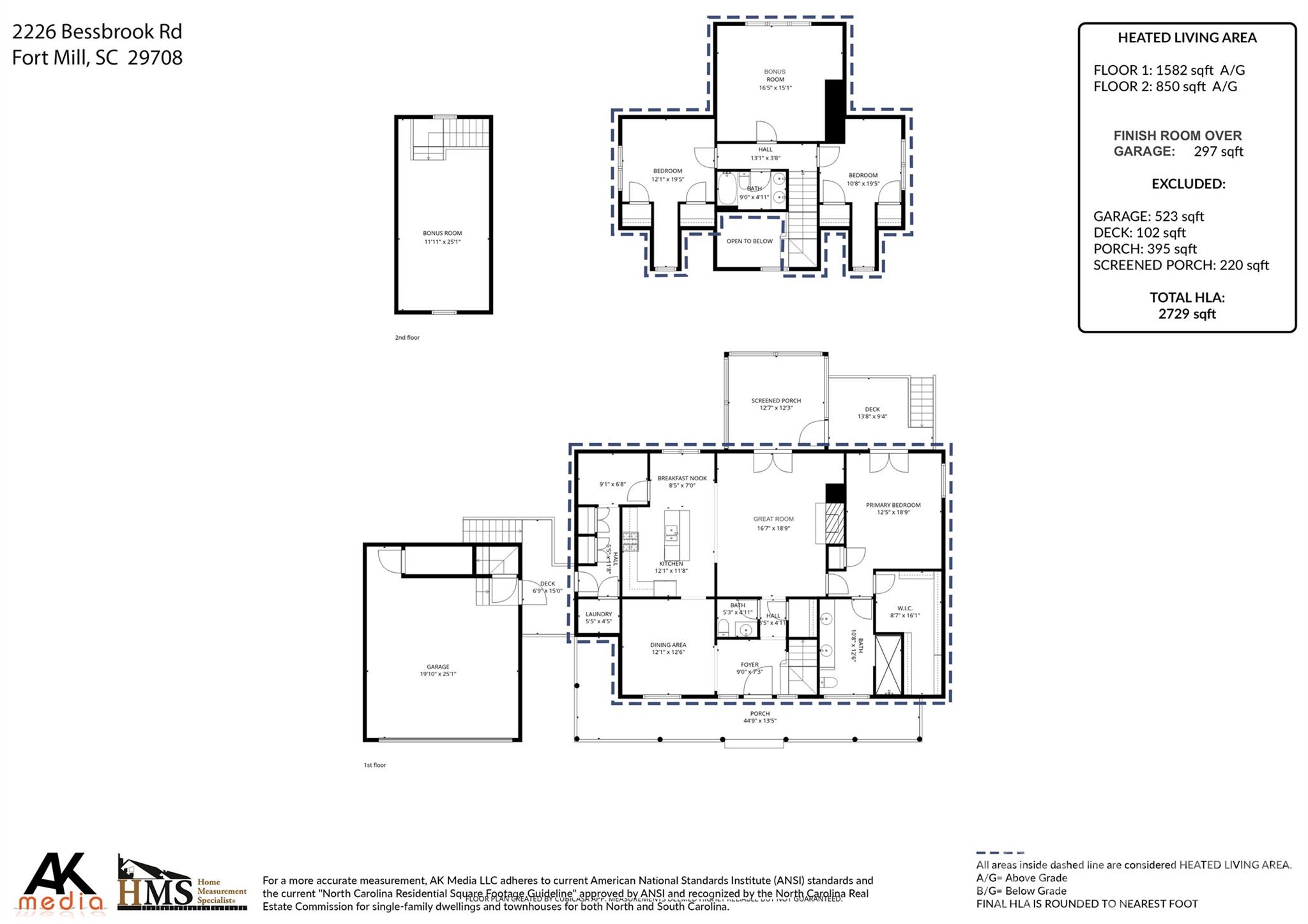
Listed below appraised value, this custom waterfront home is situated on over 3 acres of serenity with no HOA! Enjoy your morning coffee on the screen porch, overlooking a wooded and water view, with lake access for kayaking, fishing, or other paddle launch activities on Lake Wylie. Or unwind on the lower paver patio beside the large fenced in yard, and additional area that has been leveled for recreation. At the start of the driveway is an out-of-this-world workshop, with garage style entrance for equipment and all of the amenities you could want (see attachment for equipment selling separately). As you enter from the welcoming wrap-around front porch, you are greeted by a 2-story foyer and gleaming hardwoods. An open concept floor plan maximizes views and gives tons of natural light. The great room is centered by a stacked stone wood-burning fireplace and built-ins. The chef's kitchen gives a warm ambiance, with a wood cooking hood, center island, stainless-steel appliances, ample counter space, as well as a breakfast area and adjacent formal dining room. The primary suite on main has additional access to the rear deck, as well as an expansive walk-in closet, bathroom with walk-in spa-like shower, double sinks, and more. Rounding out the downstairs is a half bath, laundry room, and loads of storage. Upstairs you'll find 2 generous bedrooms, a full bathroom, and a sizable bonus room. Over the garage is a walk-up to another flex/office/movie room/exercise/bonus/loft space, giving you tons of flexibility and options. With too many features to mention, including new carpet, in-ground irrigation, an oversized garage with extra store space, and more. This home is of the best kept secrets with award-winning Fort Mill Schools, convenient to Rivergate shopping, easy access to Charlotte Douglas International Airport and I-77 and I-485, all tucked away in a private retreat surrounded by nature - Welcome Home!
Water Body:
Lake Wylie
Property Type:
Residential
Map
This property is a listing of Howard Hanna Allen Tate Fort Mill.Listings courtesy of Canopy MLS as distributed by MLS GRID.
© 2026 Canopy MLS. All rights reserved.
Claims of Copyright Infringement & Related Issues (17 USC § 512 et seq.)
