16027 Harbor Hill Drive
Charlotte, NC
$501,000
Status: Active
Beds: 4
Full Baths: 2
Half Baths: 1
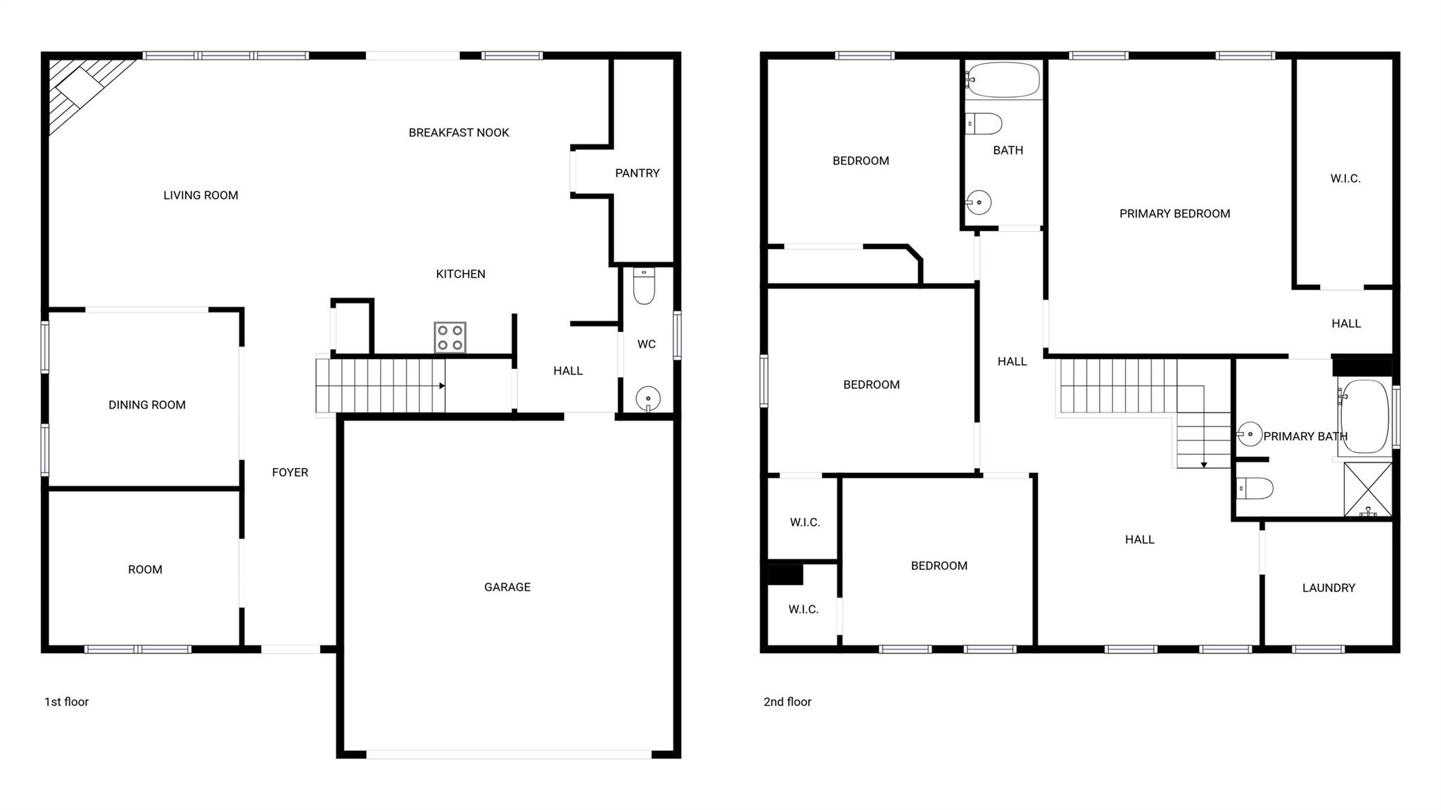
Sq ft: 2711
Sub Division: Chateau
Elementary School: River Gate
Middle School: Southwest
High School: Palisades
Year Built: 2019
Acerage: 0.175 Acres
MLS #: 4354434
Status: Active
Facebook Twitter Pinterest Instagram eMail To

Details & Amenities

Welcome to 16027 Harbor Hill Dr, a home that exudes warmth and elegance. The living room is graced with a cozy fireplace, perfect for those chilly evenings. The kitchen is a chef's dream with a functional island, an accent backsplash that adds a touch of sophistication, and all stainless steel appliances for a sleek finish. A walk-in pantry provides ample storage for all your culinary needs. The primary bathroom is a sanctuary with a separate tub and shower, and double sinks for added convenience. Outside, enjoy a relaxing patio and a fenced-in backyard, perfect for outdoor activities. This home is a true gem, providing a blend of comfort and style. Included 100-Day Home Warranty with buyer activation
Property Type:
Residential


Map
This property is a listing of Opendoor Brokerage LLC.
Listings courtesy of Canopy MLS as distributed by MLS GRID.
© 2026 Canopy MLS. All rights reserved.
Claims of Copyright Infringement & Related Issues (17 USC § 512 et seq.)