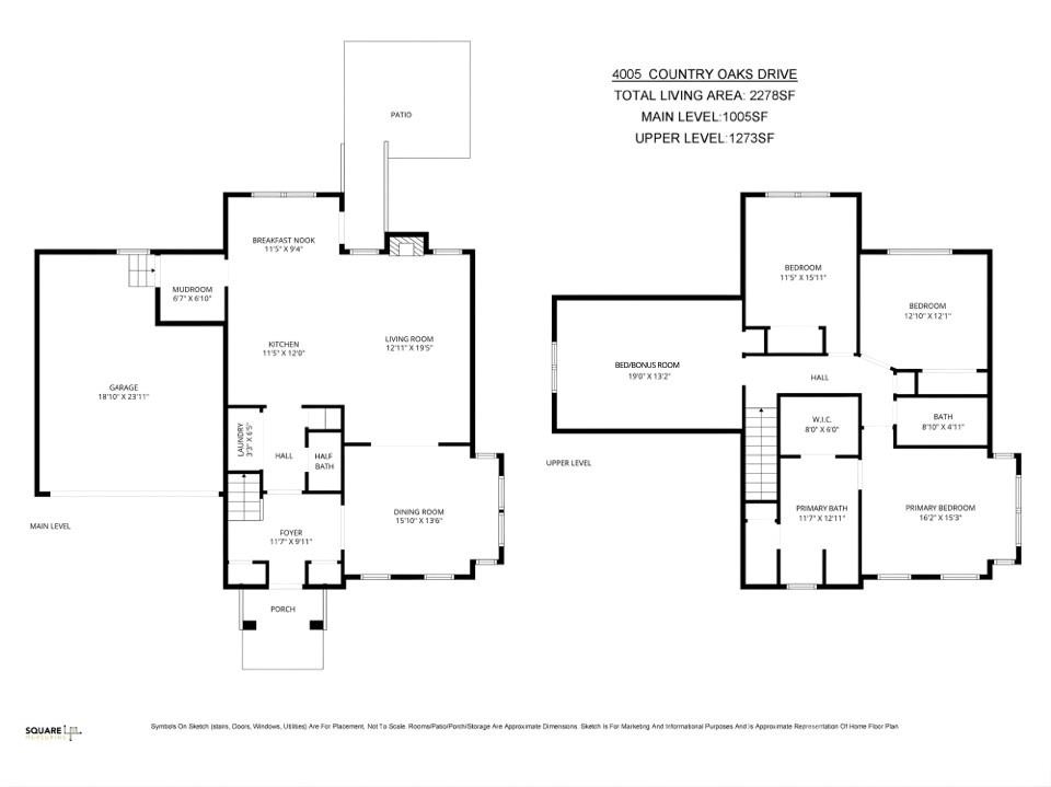
4005 Country Oaks Drive
Waxhaw, NC
$525,000
Status: Active
Beds: 4
Full Baths: 2
Half Baths: 1
Sq ft: 2278
Sub Division: The Oaks On Providence
Elementary School: Waxhaw
Middle School: Parkwood
High School: Parkwood
Year Built: 1997
Acerage: 0.31 Acres
MLS #: 4354796
Status: Active
Facebook Twitter Pinterest Instagram eMail To

Details & Amenities

Designer style and finishes will delight throughout this thoughtfully refreshed home featuring beautiful white oak engineered wood floors across the main level. The layout offers a balanced blend of open-flow living with intentional separation of spaces, including a defined foyer and dining room. The chef’s kitchen has been completely updated with cabinetry to the ceiling, an oversized waterfall quartz island, farmhouse sink, and Zline gas range. A coffee bar in the breakfast area features a soapstone-look quartz countertop, while the adjoining light-filled nook overlooks the backyard, creating the perfect spot for morning coffee or casual meals. Designer hardware and fixtures from Rejuvenation Hardware, Crate & Barrel and more carry a cohesive, elevated aesthetic throughout the home. A mudroom/drop zone was added from the garage, offering a functional and organized everyday entry, while a thoughtfully designed laundry area tucked under the stairs maximizes space without sacrificing style. All bedrooms are located upstairs, including an oversized primary retreat with a vaulted ceiling and abundant natural light. The en-suite bath features dual vanities, a soaking tub, and a separate shower. Two secondary bedrooms offer flexibility for guest space, office, or additional living needs, while the bonus room with vaulted ceilings can function as a fourth bedroom, media room, or play space. Bathrooms have been refreshed with new tile and fixtures, including a well-designed powder room that makes an impression despite its size, creating a clean, cohesive look throughout. Recent system updates include furnaces replaced in 2024 and 2026, a central air unit replaced in 2024, and a 2026 garage door motor. Situated on a spacious corner lot with a recently built wood privacy fence and enhanced landscaping, the backyard offers space to gather, play, or unwind, with room for a fire pit, entertaining, or simply enjoying the outdoors. The Oaks on Providence is a quiet, established community with no HOA, located less than five minutes from downtown Waxhaw’s local shops, dining, parks, and community events
Property Type:
Residential


Map
This property is a listing of Yancey Realty, LLC.
Listings courtesy of Canopy MLS as distributed by MLS GRID.
© 2026 Canopy MLS. All rights reserved.
Claims of Copyright Infringement & Related Issues (17 USC § 512 et seq.)