229 Race Street
Statesville, NC
$625,000
Details & Amenities
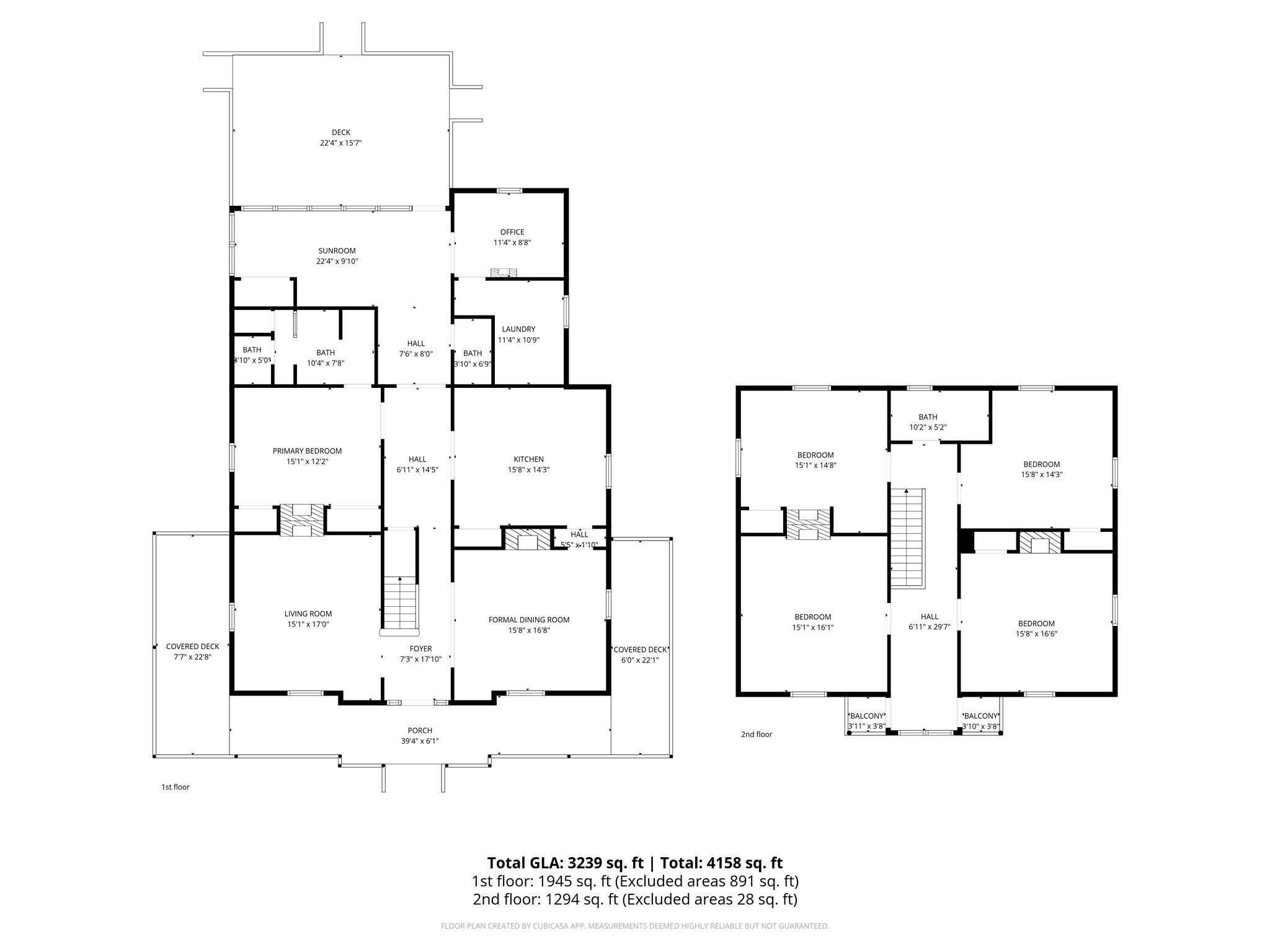
Historic home in the heart of Statesville’s Historic District offering approximately 3,239 sq ft with 5 bedrooms and 2.5 bathrooms. This property features a wraparound front porch, original hardwood floors, tall ceilings, detailed millwork, and SEVEN unique fireplaces throughout the home.
The spacious layout includes a main-level primary suite, additional flex/office room, independent washroom, and bright sunroom overlooking the backyard and deck. Outdoor living is ideal for entertaining with an oversized deck with awning, in-ground pool, large patio area, and mature landscaping.
A poolhouse with half bath provides additional convenience for outdoor gatherings. The detached garage offers generous attic storage and a climate-controlled office/flex space & garage both with mini-split systems, perfect for a home office, studio, or additional workspace. The extended driveway provides ample parking for guests.
Recent updates include a metal roof (2020), HVAC system (2017), and crawlspace vapor barrier (2017), Water Heater (2023), along with pool improvements by the current owners.
Conveniently located minutes from downtown Statesville’s shops and dining and just down the street from Mitchell Community College, this property offers historic character, generous space, and a prime location.
Property Type:
Residential
Map
This property is a listing of EXP Realty LLC Ballantyne.Listings courtesy of Canopy MLS as distributed by MLS GRID.
© 2026 Canopy MLS. All rights reserved.
Claims of Copyright Infringement & Related Issues (17 USC § 512 et seq.)
