10833 Kenderly Court
Charlotte, NC
$725,000
Details & Amenities
Welcome home to Wynridge Estates! This incredible opportunity is located in the heart of Blakeney/Ballantyne, tucked into a wonderful community within one of Charlotte’s most sought-after school zones.
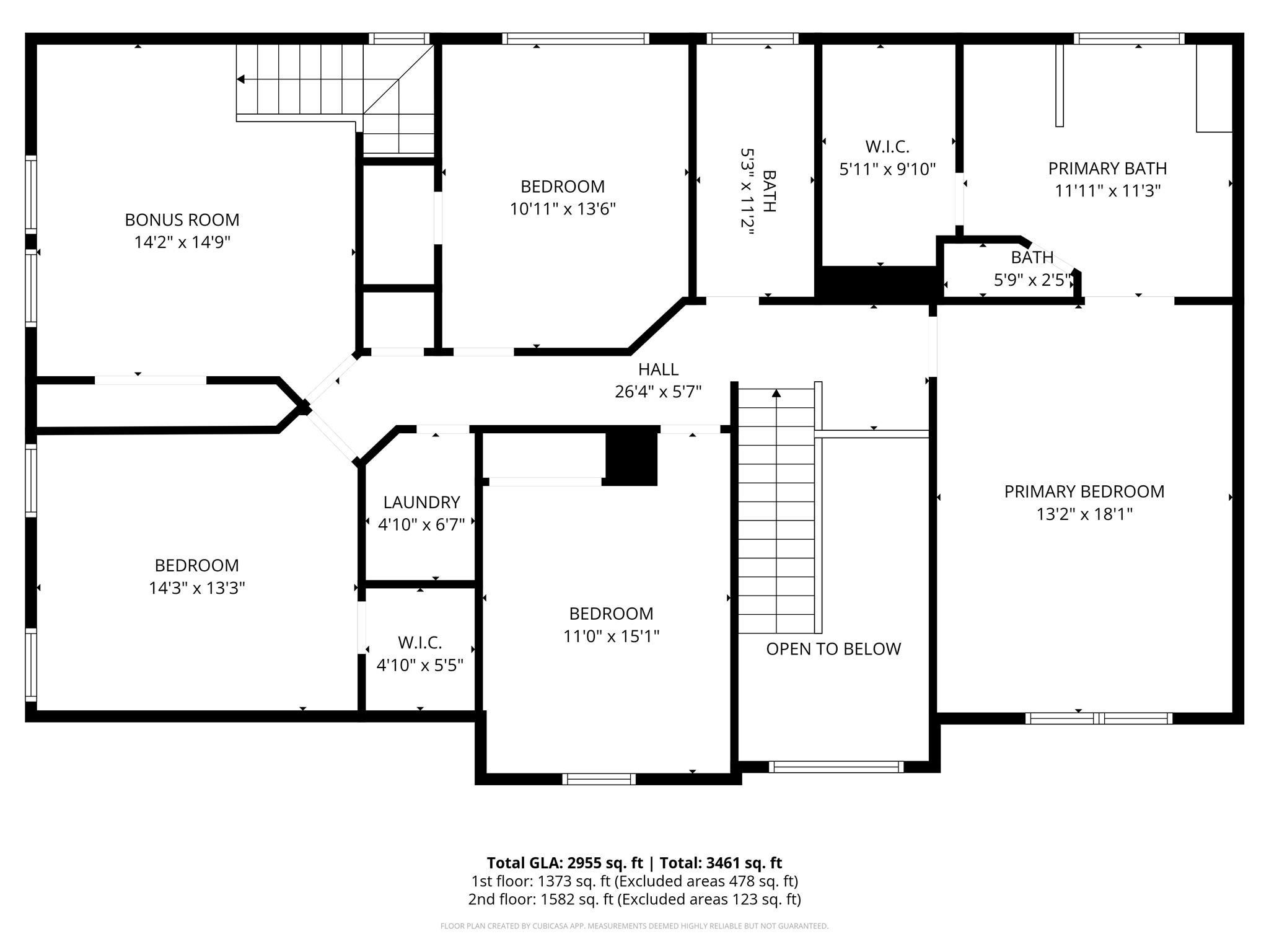
The home features 5 bedrooms plus a spacious second-floor bonus room, including a first-floor bedroom that works perfectly as an office or flex space. The recently updated kitchen includes quartz countertops, soft-close white cabinetry, a stainless gas cooktop, double oven, and a center island, all opening to the family room with a cozy gas log fireplace. Beautiful wood floors run throughout most of the main level.
The primary suite offers a cathedral ceiling, large bathroom, and walk-in closet. Upstairs you’ll also find three nicely sized secondary bedrooms with ample closet space, along with the bonus room and a convenient second staircase.
Outside, the paver patio overlooks a large, private, fenced backyard. A side-load garage and classic brick front add to the home’s fabulous curb appeal.
Conveniently located near Ardrey Kell High School and Knights View Elementary, with easy access to shopping, dining, and everything Blakeney and Ballantyne have to offer.
Property Type:
Residential
Map
This property is a listing of Corcoran HM Properties.Listings courtesy of Canopy MLS as distributed by MLS GRID.
© 2026 Canopy MLS. All rights reserved.
Claims of Copyright Infringement & Related Issues (17 USC § 512 et seq.)
