14604 Brannock Hills Drive
Charlotte, NC
$600,000
Details & Amenities
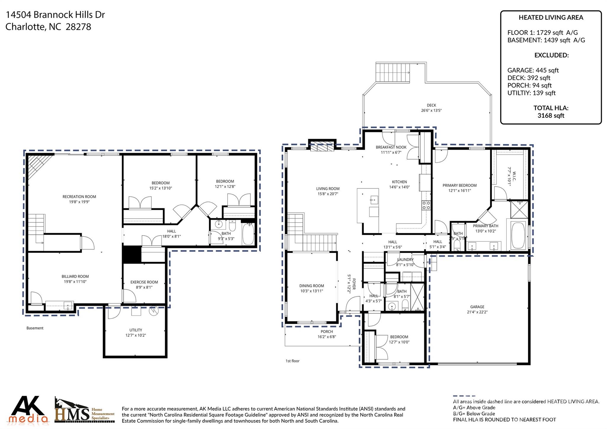
Welcome to this beautifully maintained 4-bedroom, 3-bath ranch home with a full walk-out basement, perfectly situated on an almost half-acre cul-de-sac lot backing to mature trees for exceptional privacy. Designed for both everyday living and entertaining, the home features an open layout with extensive hardwood flooring, crown molding throughout. The foyer leads to the formal dining room that flows seamlessly into the family room and gourmet kitchen, complete with granite countertops, an island, soft-close cabinetry with pull-out drawers, large pantry and a range with double ovens - perfect for hosting family and friends. The primary suite on the main level is privately tucked away, offering a spa-like retreat with a soaking tub, separate shower, double sinks, and an oversized walk-in closet. Both the primary bedroom and breakfast nook open directly to an expansive deck with a hot tub, creating the perfect place to relax while overlooking the peaceful, tree-lined backyard. The fully finished walk-out basement expands the living space with two additional bedrooms, a full bath, a spacious second living area with a 2nd gas fireplace, a private office, and a wet bar with beverage fridge—plus ample space for a pool table or game area. A 2nd kitchen could easily be added to this space, allowing for multi-generational living! A convenient storage room adds even more functionality. Outdoor living is just as impressive, featuring an expansive lower-level stone paver patio, koi pond with waterfall, and beautifully landscaped backyard. The under-deck drainage system keeps the patio dry during rain, allowing you to enjoy the space year-round. Additional highlights include central vacuum system with a garage connection for easy car cleaning, extensive hanging shelving in garage, and a whole-house water filtration system. Energy efficiency is another standout feature, with solar panels installed in 2021 that help keep electric bills negligible. COUNTY TAXES ONLY, so the savings continue! This beauty offers easy access to both Fort Mill/Tega Cay and Steele Creek shopping, interstates, Lake Wylie, and Charlotte Douglas Airport.
Property Type:
Residential
Map
This property is a listing of First Properties.Listings courtesy of Canopy MLS as distributed by MLS GRID.
© 2026 Canopy MLS. All rights reserved.
Claims of Copyright Infringement & Related Issues (17 USC § 512 et seq.)
