8805 Firestreak Drive
Charlotte, NC
$355,000
Status: Active Under Contract
Beds: 3
Full Baths: 2
Half Baths: 1
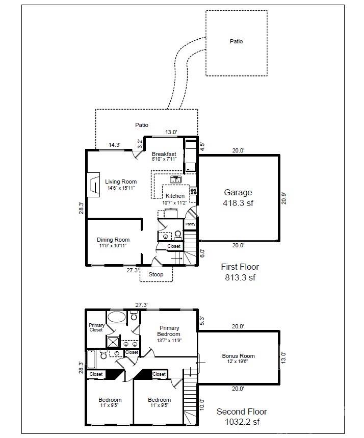
Sq ft: 1845
Sub Division: Keeneland
Elementary School: Long Creek
Middle School: Bradley
High School: Hopewell
Year Built: 2000
Acerage: 0.21 Acres
MLS #: 4359564
Status: Active Under Contract
Facebook Twitter Pinterest Instagram eMail To

Details & Amenities

Welcome home to the quiet, established Keeneland neighborhood! This must-see 1,846 sq. ft. single-family home delivers the perfect combination of space, comfort, and an unbeatable location just minutes from the interstate, premier shopping, and local dining. Situated on a desirable, level corner lot with a 2-car garage and a roof replaced in 2020, this property offers peace of mind alongside stunning modern updates. Step inside to find a home refreshed with new paint throughout and stylish LVP flooring spanning most of the residence—there is absolutely no carpet in this house, making it ideal for low-maintenance living. Off the foyer, a lovely formal dining room accented with classic wainscoting trim sets the stage for holiday gatherings. The heart of the home is the inviting family room, featuring custom built-in shelving and a cozy gas fireplace. The chef’s kitchen is fully equipped with sleek granite countertops, stainless steel appliances, durable tiled floors, and a bright breakfast nook for casual mornings. Upstairs, the oversized 240 sq. ft. bonus room impresses with soaring vaulted ceilings, offering endless possibilities for a media room or gym. The updated primary suite serves as a true retreat, featuring dual vanities, a separate shower, a deep garden tub, and an ample-sized walk-in closet. The highlight of this property is the $50,000+ backyard transformation. Fully enclosed by a level privacy fence, this outdoor oasis features premium artificial grass for a perfect lawn year-round, a massive 200+ sq. ft. patio, and a separate walkway leading to your private, covered hot tub retreat. The Aqua Living Hot Tub will remain with the home! These upgrades and the prime location make it a rare find at this price point. The community also has a clubhouse and outdoor pool for your summer enjoyment!
Property Type:
Residential


Map
This property is a listing of Century 21 DiGioia Realty.
Listings courtesy of Canopy MLS as distributed by MLS GRID.
© 2026 Canopy MLS. All rights reserved.
Claims of Copyright Infringement & Related Issues (17 USC § 512 et seq.)