1305 Bansal Drive
Charlotte, NC
$465,810
Details & Amenities
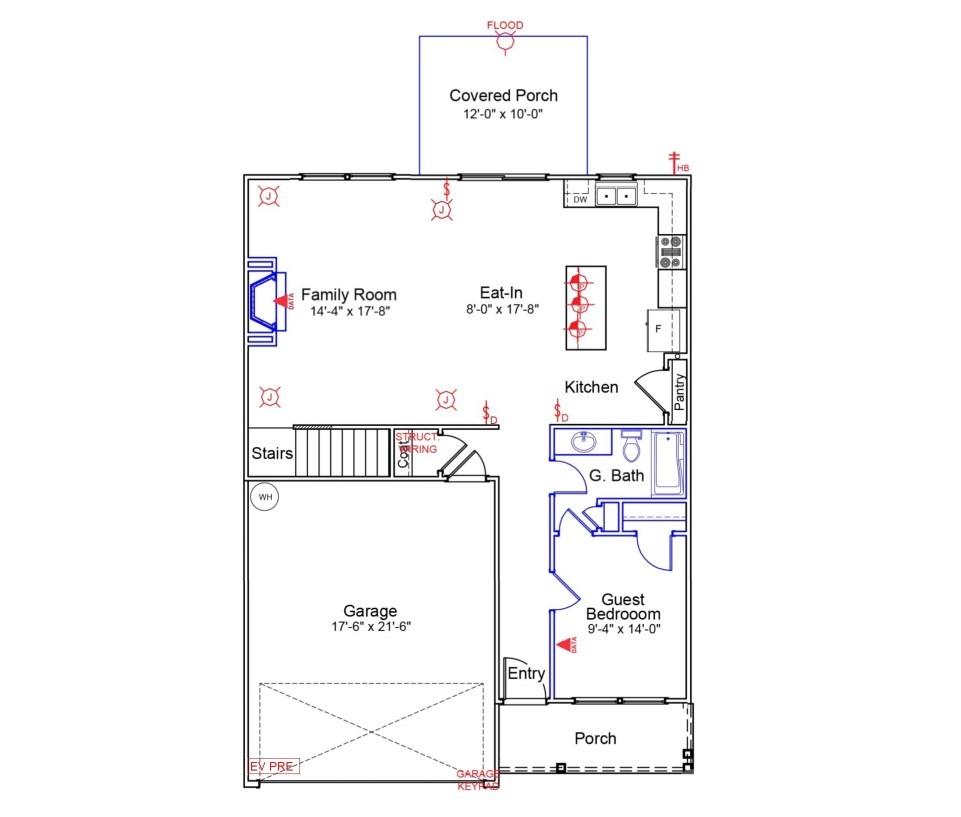
This two-story home includes four bedrooms and three bathrooms on a corner homesite. The entrance from the attached two-car garage leads to the kitchen and eat-in, which also connects to the great room. Near the front door is a guest suite that you can convert into an office or flex space. Upstairs, the primary bedroom leads to a primary bathroom with two linen closets, access to a large walk-in closet, and multiple options for reconfiguration if you chose to build on another homesite. The laundry room is conveniently located just outside the primary bedroom, close to the two spare bedrooms, their full bathroom featuring a convenience privacy door, and large open loft recreation area. Bedrooms 2 & 3 upstairs also feature large walk-in closets!
Chosen custom selections include:
Exterior: Meriweather Elevation D, White Siding with Black windows and gutters with gray brick accent. VERY TRENDY!
Structural: Guest Suite on Main, Gas Fireplace, Covered Rear Porch, Primary Bath garden tub and tile shower, Tray ceiling over primary bedroom.
Design: White Cabinets, 3cm Colonial White Granite Countertops, Soft Beige LVP Flooring everywhere except carpet in bedrooms 2 & 3, Hardwood Stairs.
Technology: Video Doorbell & Hub, Full Home Networking with centralized tech box, programmable thermostats.
Appliances: SS Gas Range, microwave, dishwasher.
Energy Efficiency: Every home independently tested and receives HERS certification.
Similar Homes available for a preview tour in person at another Mungo Homes community while this home is under construction and virtual tours of the Meriweather plan are available on YouTube.
Property Type:
Residential
Map
This property is a listing of Mungo Homes.Listings courtesy of Canopy MLS as distributed by MLS GRID.
© 2026 Canopy MLS. All rights reserved.
Claims of Copyright Infringement & Related Issues (17 USC § 512 et seq.)
